- Casas Nuevas
- Washington
- Área de Bellingham
- Mount Vernon, WA
- Skagit Design Homes
Skagit Design Homes
Mount Vernon, WA
Casas Personalizadas por Skagit Design Homes
Reclame este listado para actualizar información, obtener acceso a herramientas exclusivas y más!
Última actualización hace 4 días
- desde $162,900 - $380,900 ¿Qué es lo que quiere decir este rango de precios?
El rango de precios mostrado refleja el precio base de las casas construidas en esta comunidad
Usted debe seleccionar entre las muchos tipos diferentes de casas construidas por este constructor y personalizar su casa nueva con opciones y personalizaciones. - 23 Casas Nuevas
Llama para conectar (888) 790-3488
Socios Valiosos
¿Es usted el constructor de Skagit Design Homes?
Leer Más Ver menos
!Reclame este listado como suyo para actualizar información, obtener acceso a herramientas exclusivas y más !
Detalles
Destacados
Skagit Design Homes, ubicada en Mount Vernon, Washington, ofrece viviendas asequibles y construidas con calidad en todo el noroeste de Washington. Propiedad y operación del equipo de marido y mujer de James y Angel Eidson, Skagit Design Homes es una constructora de viviendas residenciales de tercera generación. El abuelo de James, Tracy (Truck) Eidson, era contratista general en Baker City, Oregón, y su padre, Jim, era contratista general en el este de Oregón. Los residentes de todo el este de Oregón todavía disfrutan de muchas de las casas que construyeron su padre y su abuelo. James Eidson creció trabajando en la industria de la construcción residencial. Obtuvo su licencia de contratista hace más de 25 años y ha trabajado en el comercio desde entonces.
Skagit Design es una empresa de construcción residencial enfocada en ofrecer viviendas bien construidas a precios razonables para familias en todo el valle de Skagit y las áreas circundantes. Cuando elige Skagit Design, tiene la oportunidad de lograr su sueño de ser propietario de una vivienda más fácilmente. Skagit Design construirá la nueva casa personalizada de sus sueños en su lote a un precio que pueda pagar y le permitirá evitar todos los dolores de cabeza asociados con ser el contratista general de su proyecto. Skagit Design es un contratista residencial local que ofrece viviendas personalizadas de calidad y bien construidas a un precio asequible, respaldadas por una garantía de diez años. Skagit Design le brindará asistencia básica con los permisos de construcción y trabajará con usted durante todo el proyecto para garantizar un proceso de construcción fácil y sin complicaciones. Cada casa de Skagit Design está construida con palos para un mejor valor y eficiencia energética. Póngase en contacto con Skagit Design hoy para descubrir la diferencia de Skagit Design.
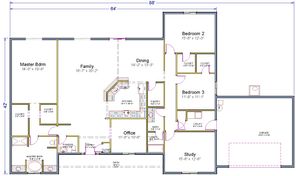
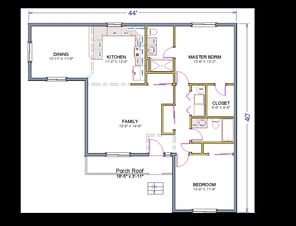
Casas y Planos de Construcción
Casas Disponibles
Comunidades Cercanas en Mount Vernon, Washington
Hipoteca estimada: $1,059/mes . Ir a la calculadora de hipotecas El pago mensual estimado no incluye los montos de impuestos, primas de seguro y mejoras en el hogar. $0 pago inicial para Veteranos
Skagit Design Homes
¿Quisiste decir?
¡guardada en favoritos!
Para ver todas las casas que ha guardado, visite Mis Favoritos en su cuenta.