- Casas Nuevas
- Alabama
- Área de Mobile
- Grand Bay, AL
- Dees Plantation
Dees Plantation por D.R. Horton
Grand Bay, AL
Comunidad por D.R. Horton
Reclame este listado para actualizar información, obtener acceso a herramientas exclusivas y más!
Última actualización hace 3 días
- desde $359,900 - $459,095 ¿Qué es lo que quiere decir este rango de precios?
El rango de precios mostrado refleja el precio base de las casas construidas en esta comunidad
Usted debe seleccionar entre las muchos tipos diferentes de casas construidas por este constructor y personalizar su casa nueva con opciones y personalizaciones. - 2246 - 3113 SQ FT
- 6 Casas Nuevas
- 1 Mudanza Rápida
Llama para conectar (888) 790-3488
Socios Valiosos
Subdivision Image 0 1/1
¿Es usted el constructor de Dees Plantation?
Leer Más Ver menos
!Reclame este listado como suyo para actualizar información, obtener acceso a herramientas exclusivas y más !
Destacados
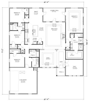
Bienvenido a Dees Plantation, nuestra nueva comunidad de casas ubicada en el encantador paisaje de Grand Bay, Alabama. Aquí se encontrará rodeado de la belleza natural de los exuberantes árboles de nuez, creando un ambiente sereno y pintoresco para su nuevo hogar. Dees Plantation ofrece una variedad de casas de 3 a 5 dormitorios, hasta 3,5 baños y de 2246 a 3127 pies cuadrados de cómodo espacio habitable. Cada vivienda dispone de garaje con cargador de vehículo eléctrico de 220V. Con una amplia variedad de diseños, estos planes ofrecen un espacio de estar abierto que incluye ya sea que esté preparando una comida o mirando televisión en la sala de estar. Las cocinas tienen un diseño moderno con gabinetes estilo shaker, una isla con encimeras de granito y fregadero estilo hacienda de acero inoxidable. La isla ofrece asientos y es ideal para ese espacio adicional para preparar comidas. También hemos equipado las casas en Dees Plantation con tecnología de hogar inteligente que agrega una increíble cantidad de comodidad y tranquilidad al alcance de su mano. Estas casas ofrecen un paquete de iluminación LED que agrega un atractivo moderno y agradable y crea un ambiente cálido. Las casas tendrán un exterior de ladrillo encantador y duradero según el plano. Dees Plantation está ubicada cerca de la empresa familiar Dees Pecan Company en Grand Bay. Este campo es tan pintoresco que no querrás perder la oportunidad de ser propietario de una casa en Dees Plantation. ¡Programe su recorrido hoy!
Mapa y Direcciones
5907 Orchard Lane East
Grand Bay, AL 36541
Casas y Planos de Construcción
Casas Disponibles
Servicios
Comunidad y vecindario
Instituciones educativas cerca de Dees Plantation
- Mobile County Schools
- Breitling Elementary School
- Grand Bay Middle School
Las escuelas podrían variar. Póngase en contacto con el constructor para obtener más información.
Instituciones educativas cercanas
Niveles PK a 5.
Niveles 6 a 8.
Las instituciones podrían variar. Le recomendamos verificar con el distrito escolar local la asignación de la escuela y el proceso de inscripción.
Comodidades del vecindario
Tiendas de Comestibles
- Kountry Korner
0.29 milla de distancia
6000 Grand Bay Wilmer Rd S
- Greer's Cashsaver
6.03 millas de distancia
10120 Grand Bay Wilmer Rd S
- Fulton Grocery
6.51 millas de distancia
9573 White Castle Rd
- La Villa Tiena Mexicana
6.70 millas de distancia
9091 Highway 90
- St Elmo Grocery
6.75 millas de distancia
8989 Highway 90
- Kountry Korner
Tiendas Especializadas
- Walmart Bakery
7.43 millas de distancia
2500 Dawes Rd
- Walmart Bakery
7.56 millas de distancia
7320 Theodore Dawes Rd
- Walmart Bakery
Restaurantes
- Krispy Krunchy Chicken
4.07 millas de distancia
12352 Old Pascagoula Rd
- Hunt Brothers Pizza
4.10 millas de distancia
12351 Old Pascagoula Rd
- Sam's Super Burger
4.14 millas de distancia
8789 Grand Bay Wilmer Rd S
- Waffle House
4.71 millas de distancia
9190 Grand Bay Wilmer Rd S
- McDonald's
4.74 millas de distancia
9200 Grand Bay Wilmer Rd S
- Krispy Krunchy Chicken
Cafés
- Dunkin'
4.78 millas de distancia
9201 Grand Bay Wilmer Rd S
- Special Touch Coffee & Prayer Room
9.52 millas de distancia
880 Dawes Rd
- Starbucks
9.87 millas de distancia
790 Schillinger Rd S
- Dunkin'
Compras
- 2 Sandy Palms Designs LLC
3.62 millas de distancia
7300A March Rd
- Revel Boutique
6.13 millas de distancia
12475 US Highway 90
- Family Dollar
6.23 millas de distancia
12350 US Highway 90
- Lucy's Boutique & Gifts
7.42 millas de distancia
2410 Dawes Rd
- Walmart Supercenter
7.43 millas de distancia
2500 Dawes Rd
- 2 Sandy Palms Designs LLC
Bares & Vida Nocturna
- Shari Lee's Lounge
7.69 millas de distancia
6291 Spanish Trail Ct
- M R Lounge
7.83 millas de distancia
7101 Theodore Dawes Rd
- Boondocks Bar & Grill
7.84 millas de distancia
10210 Airport Blvd
- Alabama Bar
7.90 millas de distancia
10071 Airport Blvd
- PS Taco Company-West Mobile
8.36 millas de distancia
7899 Cottage Hill Rd
- Shari Lee's Lounge
Tenga en cuenta que esta información puede variar. Si encuentra algo inexacto, por favor contáctenos
In 1978, D.R. Horton broke ground on our first home in Fort Worth, Texas. Since that day, the company has defined its success not by bricks and mortar, but by the satisfaction of the families that make our houses their homes. Our foundation is a single, guiding principle: a value-first dedication to the individual needs of each and every one of our nation’s homebuyers.
From first-time homebuyers to empty nesters, our family of brands provides a home for every stage in life. Our highly-trained, market experts are where you want to live, from New Jersey to Hawaii, providing unique, personalized services tailored to your individual needs. But the real value comes from the quality construction we put into every home, and the peace of mind that comes with a premium-backed warranty from America’s Number One Homebuilder.
We’ve come a long way, and while more people choose our family of brands over any other builder in the country, we never forget the most important thing of all – the families that choose us for their place to call home.
So continue to live out those dreams, America, and know we’ll be here for you every step of the way.
Comunidades Cercanas en Grand Bay, Alabama
Hipoteca estimada: $2,340/mes . Ir a la calculadora de hipotecas El pago mensual estimado no incluye los montos de impuestos, primas de seguro y mejoras en el hogar. $0 pago inicial para Veteranos
Dees Plantation por D.R. Horton
¿Quisiste decir?
¡guardada en favoritos!
Para ver todas las casas que ha guardado, visite Mis Favoritos en su cuenta.
