- Casas Nuevas
- South Carolina
- Área de Columbia
- Lugoff, SC
- Willow Commons
Willow Commons por D.R. Horton
Lugoff, SC
Comunidad por D.R. Horton
Reclame este listado para actualizar información, obtener acceso a herramientas exclusivas y más!
Última actualización hace 23 horas
- desde $215,000 - $224,990 ¿Qué es lo que quiere decir este rango de precios?
El rango de precios mostrado refleja el precio base de las casas construidas en esta comunidad
Usted debe seleccionar entre las muchos tipos diferentes de casas construidas por este constructor y personalizar su casa nueva con opciones y personalizaciones. - 1178 - 1418 SQ FT
- 2 Casas Nuevas
Llama para conectar (888) 355-8096
Socios Valiosos

Subdivision Image 4 1/1
¿Es usted el constructor de Willow Commons?
Leer Más Ver menos
!Reclame este listado como suyo para actualizar información, obtener acceso a herramientas exclusivas y más !
Destacados
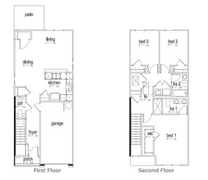
Bienvenido a Willow Commons, ubicado en la encantadora ciudad de Lugoff, Carolina del Sur. Aquí encontrará casas adosadas de 3 habitaciones y puede elegir entre nuestras opciones de uno o dos pisos. Estas casas adosadas están equipadas con todas las características y opciones que ha estado buscando. Las encimeras de granito en la cocina y los pisos de vinilo Mohawk son solo algunos detalles que le dan a estas casas un toque moderno pero acogedor. Sin mencionar que el concepto abierto de los espacios de estar y cocina crea un gran espacio abierto para recibir invitados. Willow Commons también ofrece jardines de bajo mantenimiento que están completamente cercados y son privados. ¡Disfrute de su patio trasero y jardín en paz y déjenos el mantenimiento a nosotros! La vida de bajo mantenimiento hace que estas casas adosadas sean perfectas para cualquier etapa de la vida. La ubicación es clave en Willow Commons. ¡Está convenientemente ubicada cerca de muchos destinos de compras y entretenimiento, así como de Fort Jackson/Shaw AFB! El corazón de Lugoff y el centro histórico de Camden están a solo minutos de Willow Commons. Sin mencionar la proximidad a las escuelas Lugoff, todas dentro de un radio de 3 millas. La tecnología de hogar inteligente en cada hogar le permite monitorear su hogar desde cualquier ubicación. ¡Controle las funciones de su hogar inteligente desde su hogar o desde el otro lado del mundo y manténgase conectado con las personas y el lugar que más valora!
Mapa y Direcciones
15 A Beechnut Street
Lugoff, SC 29078
Casas y Planos de Construcción
Casas Disponibles
Servicios
Comunidad y vecindario
Instituciones educativas cerca de Willow Commons
- Kershaw 01 School District
- Lugoff Elementary School
- Lugoff Elgin Middle School
- Lugoff Elgin High School
Las escuelas podrían variar. Póngase en contacto con el constructor para obtener más información.
Instituciones educativas cercanas
Niveles KG a 5.
Niveles 6 a 8.
Niveles 9 a 12.
Las instituciones podrían variar. Le recomendamos verificar con el distrito escolar local la asignación de la escuela y el proceso de inscripción.
Comodidades del vecindario
Tiendas de Comestibles
- Food Lion
1.12 millas de distancia
610 Highway 1 S
- Walmart Supercenter
2.05 millas de distancia
2240 W Dekalb St
- Rivera Supermarket
4.32 millas de distancia
1109 Fairlawn Dr
- Food Lion
4.83 millas de distancia
2529 Broad St
- Piggly Wiggly
5.06 millas de distancia
50 E Dekalb St
- Food Lion
Tiendas Especializadas
- Walmart Bakery
2.05 millas de distancia
2240 W Dekalb St
- GNC
2.35 millas de distancia
1670 Springdale Dr
- Walmart Bakery
Restaurantes
- SONIC Drive-in
0.40 milla de distancia
804 Highway 1 S
- Hwy 55 Burgers Shakes & Fries
0.44 milla de distancia
828 Highway 1 S
- Captain D's
0.44 milla de distancia
818 Highway 1 S
- Lugoff House of Pizza
0.46 milla de distancia
814 Highway 1 S
- SONIC Drive-in
Cafés
- Scooter's Coffeehouse
0.46 milla de distancia
812 Highway 1 S
- Books on Broad and Coffee
4.22 millas de distancia
944 Broad St
- Starbucks
4.32 millas de distancia
2184 W Dekalb St
- Scooter's Coffeehouse
Compras
- Walmart Supercenter
2.05 millas de distancia
2240 W Dekalb St
- Marshalls
2.10 millas de distancia
2209 W Dekalb St
- Hibbett Sports
2.26 millas de distancia
1640 Springdale Dr
- Bealls
2.35 millas de distancia
1670 Springdale Dr
- Belk
2.35 millas de distancia
1670 Springdale Dr
- Walmart Supercenter
Bares & Vida Nocturna
- Gadgets of Lugoff
0.88 milla de distancia
96 Highway 601 S
- Chili's
2.13 millas de distancia
1635A Springdale Dr
- Broad & Vine
4.18 millas de distancia
1025 Broad St
- Beaver's Den at Beaver Creek Bar & Grill
4.32 millas de distancia
3482 John G Richards Rd
- Haile Street Grill
5.14 millas de distancia
1350 Haile St
- Gadgets of Lugoff
Tenga en cuenta que esta información puede variar. Si encuentra algo inexacto, por favor contáctenos
In 1978, D.R. Horton broke ground on our first home in Fort Worth, Texas. Since that day, the company has defined its success not by bricks and mortar, but by the satisfaction of the families that make our houses their homes. Our foundation is a single, guiding principle: a value-first dedication to the individual needs of each and every one of our nation’s homebuyers.
From first-time homebuyers to empty nesters, our family of brands provides a home for every stage in life. Our highly-trained, market experts are where you want to live, from New Jersey to Hawaii, providing unique, personalized services tailored to your individual needs. But the real value comes from the quality construction we put into every home, and the peace of mind that comes with a premium-backed warranty from America’s Number One Homebuilder.
We’ve come a long way, and while more people choose our family of brands over any other builder in the country, we never forget the most important thing of all – the families that choose us for their place to call home.
So continue to live out those dreams, America, and know we’ll be here for you every step of the way.
Comunidades Cercanas en Lugoff, South Carolina
Hipoteca estimada: $1,398/mes . Ir a la calculadora de hipotecas El pago mensual estimado no incluye los montos de impuestos, primas de seguro y mejoras en el hogar. $0 pago inicial para Veteranos
Willow Commons por D.R. Horton
¿Quisiste decir?
¡guardada en favoritos!
Para ver todas las casas que ha guardado, visite Mis Favoritos en su cuenta.
