- Casas Nuevas
- South Carolina
- Área de Columbia
- Blythewood, SC
- Leatherstone
Leatherstone por D.R. Horton
Blythewood, SC
Comunidad por D.R. Horton
Reclame este listado para actualizar información, obtener acceso a herramientas exclusivas y más!
Última actualización hace 23 horas
- desde $283,990 - $394,140 ¿Qué es lo que quiere decir este rango de precios?
El rango de precios mostrado refleja el precio base de las casas construidas en esta comunidad
Usted debe seleccionar entre las muchos tipos diferentes de casas construidas por este constructor y personalizar su casa nueva con opciones y personalizaciones. - 1459 - 2713 SQ FT
- 13 Casas Nuevas
- 5 Mudanza Rápida
Llama para conectar (888) 355-8096
Socios Valiosos

Subdivision Image 0 1/3
¿Es usted el constructor de Leatherstone?
Leer Más Ver menos
!Reclame este listado como suyo para actualizar información, obtener acceso a herramientas exclusivas y más !
Destacados
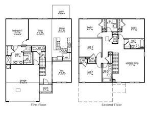
Te sentirás como en casa en Leatherstone, la nueva comunidad DRHE de DR Hortons en Blythewood, SC. Esta comunidad cuenta con planos de planta de uno y dos pisos que varían de 1,475 a 2,511 pies cuadrados. Estas casas vienen completas con características elevadas, que incluyen hermosas encimeras de cuarzo, protector contra salpicaduras en la cocina y revestimiento Hardie Plank. Los planos de planta que se encuentran en Leatherstone ofrecen amplias áreas de estar, habitaciones flexibles, vestidores y suites para invitados en el primer piso o suites principales. También cuentan con entre 3 y 5 habitaciones, así que no importa lo que estés buscando, ¡Leatherstone tendrá un nuevo hogar para ti! Leatherstone está ubicado a la vuelta de la esquina del acceso a la I-77 y la ciudad de Blythewood. Varias opciones de entretenimiento cercanas incluyen el campo de golf Cobblestone, Doko Meadows Park y el mercado de agricultores de Blythewood. Killian Road es otra ubicación en auge que está a solo minutos de Leatherstone. Aquí puedes encontrar una amplia opción de restaurantes y tiendas. La futura planta de Scout y el centro de Columbia se encuentran a corta distancia de Leatherstone, lo que la convierte en una ubicación muy atractiva para muchos. ¡No querrá perder la oportunidad de vivir en esta codiciada comunidad! ¡Programe una visita hoy mismo!
Mapa y Direcciones
2100 Leatherstone Lane
Blythewood, SC 29016
Casas y Planos de Construcción
Casas Disponibles
Servicios
Comunidad y vecindario
Instituciones educativas cerca de Leatherstone
- Richland 02 School District
- Bethel Hanberry Elementary School
- Muller Road Middle School
- Westwood High School
Las escuelas podrían variar. Póngase en contacto con el constructor para obtener más información.
Instituciones educativas cercanas
Niveles PK a 5.
Niveles 6 a 8.
Niveles 9 a 12.
Las instituciones podrían variar. Le recomendamos verificar con el distrito escolar local la asignación de la escuela y el proceso de inscripción.
Comodidades del vecindario
Tiendas de Comestibles
- Walmart Supercenter
1.15 millas de distancia
321 Killian Rd
- Kroger Marketplace
1.89 millas de distancia
1028 Roberts Branch Pkwy
- ALDI
2.39 millas de distancia
1240 Longreen Pkwy
- Publix
4.15 millas de distancia
4611 Hard Scrabble Rd
- Lidl
4.39 millas de distancia
1401 Summit Pkwy
- Walmart Supercenter
Tiendas Especializadas
- Walmart Bakery
1.15 millas de distancia
321 Killian Rd
- Southern Belle Bakery LLC
2.61 millas de distancia
333 Westmoreland Rd
- Vintage Bakery LLC
3.13 millas de distancia
409 Ruddy Duck Ct
- GNC
4.15 millas de distancia
4611 Hard Scrabble Rd
- Mesha's Sinful Cakes & More
4.93 millas de distancia
9003 Two Notch Rd
- Walmart Bakery
Restaurantes
- Hunt Brothers Pizza
1.08 millas de distancia
9401 Wilson Blvd
- Monterrey's Mexican Restaurant
1.25 millas de distancia
327 Killian Rd
- China Dragon
1.26 millas de distancia
331 Killian Rd
- Panera Bread
1.49 millas de distancia
1321 Roberts Branch Pkwy
- Arch Enterprises
1.52 millas de distancia
399 Killian Rd
- Hunt Brothers Pizza
Cafés
- Scooter's Coffeehouse
1.71 millas de distancia
81 Tulip Oak Dr
- Starbucks
1.89 millas de distancia
1028 Roberts Branch Pkwy
- Starbucks
1.92 millas de distancia
1033 Roberts Branch Pkwy
- Tropical Smoothie Cafe
1.92 millas de distancia
1033 Roberts Branch Pkwy
- Scooter's Coffeehouse
Compras
- Walmart Supercenter
1.15 millas de distancia
321 Killian Rd
- Cato Fashions
1.25 millas de distancia
327 Killian Rd
- Jd'd Fashion II
1.25 millas de distancia
327 Killian Rd
- Shoe Dept
1.25 millas de distancia
327 Killian Rd
- Petty Kid's Clothing LLC
2.88 millas de distancia
301 Stimson Ln
- Walmart Supercenter
Bares & Vida Nocturna
- Applebee's Grill + Bar
1.76 millas de distancia
437 Killian Rd
- Quick Stop
3.07 millas de distancia
9102 Farrow Rd
- Beef'O'Brady's
4.15 millas de distancia
4561 Hard Scrabble Rd
- Lite Um Up Cigars Lounge
4.17 millas de distancia
4435 Hard Scrabble Rd
- Seven Sports Bar
4.20 millas de distancia
2000 Clemson Rd
- Applebee's Grill + Bar
Tenga en cuenta que esta información puede variar. Si encuentra algo inexacto, por favor contáctenos
In 1978, D.R. Horton broke ground on our first home in Fort Worth, Texas. Since that day, the company has defined its success not by bricks and mortar, but by the satisfaction of the families that make our houses their homes. Our foundation is a single, guiding principle: a value-first dedication to the individual needs of each and every one of our nation’s homebuyers.
From first-time homebuyers to empty nesters, our family of brands provides a home for every stage in life. Our highly-trained, market experts are where you want to live, from New Jersey to Hawaii, providing unique, personalized services tailored to your individual needs. But the real value comes from the quality construction we put into every home, and the peace of mind that comes with a premium-backed warranty from America’s Number One Homebuilder.
We’ve come a long way, and while more people choose our family of brands over any other builder in the country, we never forget the most important thing of all – the families that choose us for their place to call home.
So continue to live out those dreams, America, and know we’ll be here for you every step of the way.
Comunidades Cercanas en Blythewood, South Carolina
Hipoteca estimada: $1,846/mes . Ir a la calculadora de hipotecas El pago mensual estimado no incluye los montos de impuestos, primas de seguro y mejoras en el hogar. $0 pago inicial para Veteranos
Leatherstone por D.R. Horton
¿Quisiste decir?
¡guardada en favoritos!
Para ver todas las casas que ha guardado, visite Mis Favoritos en su cuenta.
