Plan Antigua
Lista para Construir
231 Ocean Drive, Santa Rosa Beach FL 32459
Casa por D.R. Horton
en Parkside
Reclame este listado para actualizar información, obtener acceso a herramientas exclusivas y más!
Última actualización hace 18 horas
- desde $1,299,900 ¿Qué es lo que quiere decir este rango de precios?
El rango de precios mostrado refleja el precio base de las casas construidas en esta comunidad
Usted debe seleccionar entre las muchos tipos diferentes de casas construidas por este constructor y personalizar su casa nueva con opciones y personalizaciones. - 4 HAB
- 3.5 BÑ
- 2 GR
- 3,229 SQ FT
Llama para conectar (888) 790-3488
Socios Valiosos

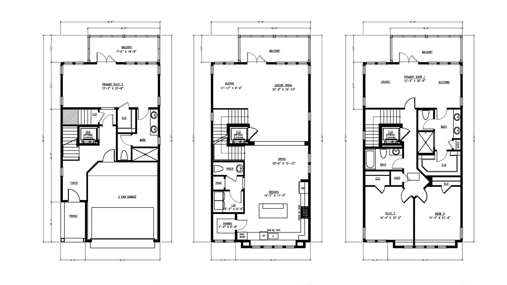
Floorplan 0 1/1
Detalles de la Casa
Destacados
- Casas Unifamiliares
- 3,229 Sq Ft
- 3 Pisos
- 3 Baños
- 1 Medio Baño
- 4 Cuartos
- 2 Garajes
Plan Antigua Información
Personalización del Hogar
Centro de Planos
View floor plan details for this property.
- Planes de Distribución
- Imagenes de Exteriores
- Imagenes de Interiores
- Otros Medios
Mapa y Direcciones
231 Ocean Drive
Santa Rosa Beach, FL 32459
Comunidad y vecindario
EspañolBienvenido a Parkside, un nuevo oasis de viviendas en Santa Rosa Beach. ¿Alguna vez se preguntó cómo es vivir en la 30A del noroeste de Florida? ¿Dónde brilla el Golfo de México esmeralda, el sol es dorado y las playas de arena blanca son prístinas? Esta espléndida comunidad costera atrae a quienes buscan la vivienda principal por excelencia, un santuario para una segunda vivienda o una lucrativa inversión en alquileres vacacionales. Cada detalle de las casas de Parkside refleja lujo y comodidad, desde las elegantes encimeras de cuarzo que adornan la cocina y los baños hasta los elegantes gabinetes blancos que brindan estilo y espacio de almacenamiento. Los amplios espacios habitables están revestidos con EVP duradero, lo que garantiza que su hogar no solo brille con elegancia, sino que también resista los vaivenes de la vida de vacaciones. Salga y descubra las comodidades de la comunidad de Parkside que satisfacen todos los caprichos. Una piscina de entrada cero y una casa de piscina con cocina al aire libre cubierta, TV y fogata a gas brindan el entorno perfecto para reuniones, mientras que el pintoresco paseo marítimo y la fuente de agua iluminada ofrecen espacios tranquilos para paseos tranquilos, tardes bajo el sol y noches alrededor de la fogata. La vida en 30A es tranquila y relajada, con esa sensación de estilo de vida playero de pueblo pequeño. Abundan tantas actividades acuáticas; el tramo está salpicado de cafeterías, bistrós para almorzar y restaurantes para esa experiencia gastronómica informal pero suprema. La acera permite que ciclistas, corredores, paseadores de perros y cochecitos salgan a hacer su dosis diaria de ejercicio. La vida en 30A se trata de sonrisas y risas con los lugareños, se trata de vivir entre la naturaleza y la exuberante vegetación, ¡se trata de vivir tu mejor vida! Con una ubicación central, Parkside está a 0,6 millas de la escuela primaria Van R. Butler, a 5,4 millas de la escuela secundaria South Walton y a 9,2 millas de la escuela secundaria Emerald Coast. ¡La vida salada te llama! Comunícate con nosotros hoy para realizar un recorrido por esta magnífica comunidad. Mas información acerca de Parkside
Lista para Construir
Construye la casa de tus sueños con el plan Antigua seleccionando tus opciones favoritas. ¡Para la mejor selección, elija su lote en Parkside hoy!
Comunidad y vecindario
Instituciones educativas cerca de Parkside
- Walton
- Van R. Butler Elementary School
- Emerald Coast Middle School
- South Walton High School
Las escuelas podrían variar. Póngase en contacto con el constructor para obtener más información.
Instituciones educativas cercanas
Niveles PK a 4.
Niveles 6 a 8.
Niveles 9 a 12.
Las instituciones podrían variar. Le recomendamos verificar con el distrito escolar local la asignación de la escuela y el proceso de inscripción.
Comodidades del vecindario
Tiendas de Comestibles
- Walmart Supercenter
1.38 millas de distancia
6712 US Highway 98 W
- La Chalupita Mexican Market
2.12 millas de distancia
3422 US Highway 98 W
- Publix
2.65 millas de distancia
725 Grand Blvd
- Publix
3.43 millas de distancia
2038 US Highway 98 W
- Winn-Dixie
4.99 millas de distancia
65 Poinciana Blvd
- Walmart Supercenter
Tiendas Especializadas
- Crust Artison Bakery
0.89 milla de distancia
4821 US Highway 98 W
- Crust Wood Fired Baking LLC
0.89 milla de distancia
4821 US Highway 98 W
- Walmart Bakery
1.38 millas de distancia
6712 US Highway 98 W
- Williams-Sonoma
2.74 millas de distancia
560 Grand Blvd
- Shaklee Distributor
2.77 millas de distancia
1427 Baytowne Cir E
- Crust Artison Bakery
Restaurantes
- Elmo's Grill
0.33 milla de distancia
6931 W County Highway 30A
- Sally's By the Sea Store
0.47 milla de distancia
74 Jump St
- Hunt Brothers Pizza
0.66 milla de distancia
7930 W County Highway 30A
- Subway
0.66 milla de distancia
7930 W County Highway 30A
- 98 Bar-B-Que
0.78 milla de distancia
5008 US Highway 98 W
- Elmo's Grill
Cafés
- Starbucks
2.57 millas de distancia
780 Grand Blvd
- Destin Coffee LLC
2.98 millas de distancia
88 Lynn Dr
- Coffee Shop
3.44 millas de distancia
4000 S Sandestin Blvd
- Charlie's Baytowne VLG Donuts
3.64 millas de distancia
9100 Baytowne Wharf Blvd
- Sweetbay Coffee
3.67 millas de distancia
1 Grand Sandestin Blvd
- Starbucks
Compras
- Walmart Supercenter
1.38 millas de distancia
6712 US Highway 98 W
- Lularoe Kristi Stevenson LLC
1.67 millas de distancia
29 Golf Club Dr
- Blue Coral Boutique LLC
1.79 millas de distancia
167 Commercial Pkwy
- Jewel Toffier
2.65 millas de distancia
95 Laura Hamilton Blvd
- Soho Style
2.65 millas de distancia
95 Laura Hamilton Blvd
- Walmart Supercenter
Bares & Vida Nocturna
- Craft Bar
2.65 millas de distancia
655 Grand Blvd
- The Wine Bar-Grand Blvd
2.65 millas de distancia
655 Grand Blvd
- Macho Taco Cantina
2.99 millas de distancia
2525 US Highway 98 W
- Applebee's Grill + Bar
3.18 millas de distancia
8670 US Highway 98 W
- Ara Rooftop
3.67 millas de distancia
1 Grand Sandestin Blvd
- Craft Bar
Tenga en cuenta que esta información puede variar. Si encuentra algo inexacto, por favor contáctenos
Detalles del Constructor
D.R. Horton
In 1978, D.R. Horton broke ground on our first home in Fort Worth, Texas. Since that day, the company has defined its success not by bricks and mortar, but by the satisfaction of the families that make our houses their homes. Our foundation is a single, guiding principle: a value-first dedication to the individual needs of each and every one of our nation’s homebuyers.
From first-time homebuyers to empty nesters, our family of brands provides a home for every stage in life. Our highly-trained, market experts are where you want to live, from New Jersey to Hawaii, providing unique, personalized services tailored to your individual needs. But the real value comes from the quality construction we put into every home, and the peace of mind that comes with a premium-backed warranty from America’s Number One Homebuilder.
We’ve come a long way, and while more people choose our family of brands over any other builder in the country, we never forget the most important thing of all – the families that choose us for their place to call home.
So continue to live out those dreams, America, and know we’ll be here for you every step of the way.
Hipoteca estimada: $8,452/mes . Ir a la calculadora de hipotecas El pago mensual estimado no incluye los montos de impuestos, primas de seguro y mejoras en el hogar. $0 pago inicial para Veteranos
Casas Cercanas en Santa Rosa Beach, Florida
Plan Antigua por D.R. Horton
¡guardada en favoritos!
Para ver todas las casas que ha guardado, visite Mis Favoritos en su cuenta.
