- Casas Nuevas
- Nevada
- Área de Reno
- Carson City, NV
- Artemis
- 527 RADIANT DRIVE (Carlsbad)
527 RADIANT DRIVE (Carlsbad)
Construyendo Ahora
Carson City, NV 89705
Casa por D.R. Horton Basic
en Artemis
Reclame este listado para actualizar información, obtener acceso a herramientas exclusivas y más!
Última actualización hace 2 días
- desde $560,990 ¿Qué es lo que quiere decir este rango de precios?
El rango de precios mostrado refleja el precio base de las casas construidas en esta comunidad
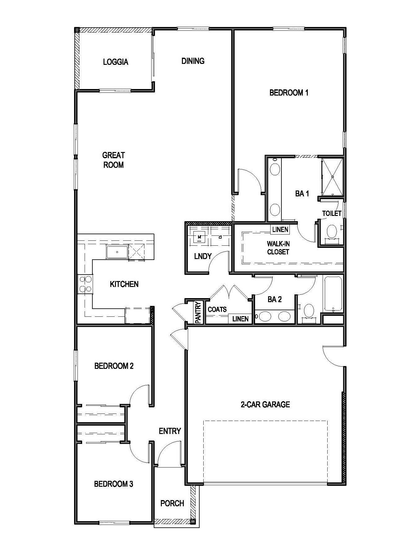
Usted debe seleccionar entre las muchos tipos diferentes de casas construidas por este constructor y personalizar su casa nueva con opciones y personalizaciones. - 3 HAB
- 2 BÑ
- 2 GR
- 1,608 SQ FT
Llama para conectar (888) 790-3488
Socios Valiosos

Plano de Planta 1/2
Detalles de la Casa
Destacados
- Casas Unifamiliares
- 1,608 Sq Ft
- 1 Piso
- 2 Baños
- 3 Cuartos
- 2 Garajes
527 RADIANT DRIVE (Carlsbad) Información de la casa
Personalización del Hogar
Centro de Planos
View floor plan details for this property.
- Planes de Distribución
- Imagenes de Exteriores
- Imagenes de Interiores
- Otros Medios
Mapa y Direcciones
1259 Coco Drive
Carson City, NV 89705
Comunidad y vecindario
Construyendo Ahora
Esta casa está actualmente en construcción en 527 RADIANT DRIVE y pronto estará disponible para la mudanza en Artemis. ¡Póngase en contacto con D.R. Horton Basic hoy para fijar sus opciones!
Comunidad y vecindario
Instituciones educativas cerca de Artemis
- Douglas County School District
Las escuelas podrían variar. Póngase en contacto con el constructor para obtener más información.
Detalles del Constructor
D.R. Horton Basic
Hipoteca estimada: $3,648/mes . Ir a la calculadora de hipotecas El pago mensual estimado no incluye los montos de impuestos, primas de seguro y mejoras en el hogar. $0 pago inicial para Veteranos
Casas Cercanas en Carson City, Nevada
527 RADIANT DRIVE (Carlsbad) por D.R. Horton Basic
¡guardada en favoritos!
Para ver todas las casas que ha guardado, visite Mis Favoritos en su cuenta.
