- Casas Nuevas
- Ohio
- Área de Columbus
- Circleville, OH
- River Ridge
- Plan Chatham
Plan Chatham
Lista para Construir
1797 Jacko Lane, Circleville OH 43113
Casa por D.R. Horton
en River Ridge
Reclame este listado para actualizar información, obtener acceso a herramientas exclusivas y más!
Última actualización hace 21 horas
- desde $349,990 ¿Qué es lo que quiere decir este rango de precios?
El rango de precios mostrado refleja el precio base de las casas construidas en esta comunidad
Usted debe seleccionar entre las muchos tipos diferentes de casas construidas por este constructor y personalizar su casa nueva con opciones y personalizaciones. - 4 HAB
- 2 BÑ
- 2 GR
- 1,771 SQ FT
Llama para conectar (888) 790-3488
Socios Valiosos

Floorplan 0 1/1
Detalles de la Casa
Destacados
- Casas Unifamiliares
- 1,771 Sq Ft
- 1 Piso
- 2 Baños
- 4 Cuartos
- 2 Garajes
Plan Chatham Información
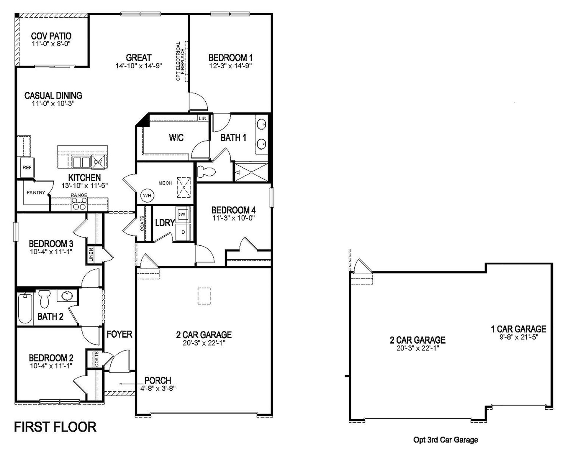
The one-level Chatham plan provides an efficient, four-bedroom, two-bath design in 1,771 square feet. One of the unique features is the integration of the kitchen, casual dining area, and Great Room in an open-concept design perfect for entertaining. The well-appointed kitchen has a convenient, walk-in corner pantry, a large built-in island and provides ample cabinet and counter space. Enjoy early morning coffee or quiet evenings under the shaded covered patio. Bedroom 1 has an ensuite bathroom with a large shower, double bowl vanity, private water closet, and spacious walk-in closet. A two-car garage and laundry room provide utility and storage. Youll enjoy added security in your new D.R. Horton home with our Home is Connected features. Using one central hub that talks to all the devices in your home, you can control the lights, thermostat, and locks, all from your cellular device.
Personalización del Hogar
Centro de Planos
View floor plan details for this property.
- Planes de Distribución
- Imagenes de Exteriores
- Imagenes de Interiores
- Otros Medios
Mapa y Direcciones
1797 Jacko Lane
Circleville, OH 43113
Comunidad y vecindario
Bienvenido a River Ridge, una nueva y encantadora comunidad ubicada en la tranquila campiña de Circleville. Aquí, encontrará una amplia gama de planos de planta cuidadosamente diseñados que se adaptan a las necesidades únicas de su estilo de vida. Ya sea que sea un comprador de vivienda por primera vez, una familia en crecimiento, un jubilado o simplemente esté buscando un refugio del ajetreo y el bullicio del centro de Columbus, River Ridge ofrece viviendas asequibles que combinan comodidad, estilo y conveniencia. Disfrute de lo mejor de ambos mundos de una vida serena y un fácil acceso a cafeterías locales, restaurantes y más en el centro de Circleville. Nuestras casas están diseñadas para brindar el equilibrio ideal de espacio y funcionalidad, perfectas para familias e individuos en cada etapa de la vida. La primera fase de viviendas ya está disponible, lo que le brinda la oportunidad de elegir la casa de sus sueños, el terreno ideal y vecinos amigables. Únase a la comunidad de River Ridge y disfrute de la belleza pacífica de Circleville, Ohio. Las casas se están vendiendo rápido, así que programe una visita hoy para asegurar su lugar y encontrar la casa que siempre ha imaginado. Mas información acerca de River Ridge
Lista para Construir
Construye la casa de tus sueños con el plan Chatham seleccionando tus opciones favoritas. ¡Para la mejor selección, elija su lote en River Ridge hoy!
Comunidad y vecindario
Instituciones educativas cerca de River Ridge
- Circleville City Schools
- Circleville Middle School
- Circleville High School
Las escuelas podrían variar. Póngase en contacto con el constructor para obtener más información.
Instituciones educativas cercanas
Niveles 6 a 8.
Niveles 9 a 12.
Las instituciones podrían variar. Le recomendamos verificar con el distrito escolar local la asignación de la escuela y el proceso de inscripción.
Comodidades del vecindario
Tiendas de Comestibles
- Kroger
2.78 millas de distancia
175 Lancaster Pike
- ALDI
3.27 millas de distancia
23455 US Highway 23 S
- Walmart Supercenter
3.70 millas de distancia
1470 S Court St
- Just Save
4.56 millas de distancia
24799 US Highway 23 S
- Ashville IGA
5.77 millas de distancia
300 Long St
- Kroger
Tiendas Especializadas
- Daily Bread LLC
1.54 millas de distancia
912 Lincoln Dr
- Cupcakes By Val LLC
1.89 millas de distancia
428 Holiday Ln
- Lindsey's Bakery
2.34 millas de distancia
127 W Main St
- Health Food Cupboard
2.54 millas de distancia
214 1/2
- Walmart Bakery
3.70 millas de distancia
1470 S Court St
- Daily Bread LLC
Restaurantes
- Bamboo House Restaurant
1.05 millas de distancia
1234 N Court St
- Pizza Hut
1.05 millas de distancia
1240 N Court St
- Wing Street
1.05 millas de distancia
1240 N Court St
- Subway
1.09 millas de distancia
1211 N Court St
- Buck Spot Inc
1.34 millas de distancia
505 Northfield Dr
- Bamboo House Restaurant
Cafés
- Scioto Valley Coffee
2.26 millas de distancia
216 W Main St
- Joy House Coffee
2.35 millas de distancia
202 N Pickaway St
- Starbucks
2.78 millas de distancia
175 Lancaster Pike
- Tim Hortons
3.67 millas de distancia
23923 US Highway 23 S
- Starbucks
3.90 millas de distancia
1641 S Court St
- Scioto Valley Coffee
Compras
- We the People Clothing Co
2.34 millas de distancia
119 W Main St
- Uniquely Yours
2.36 millas de distancia
103 W Main St
- Shoe Sensation
2.54 millas de distancia
23573 US South 23
- maurices
3.63 millas de distancia
1468 Circleville Plaza Dr
- Walmart Supercenter
3.70 millas de distancia
1470 S Court St
- We the People Clothing Co
Bares & Vida Nocturna
- Woody's Place
0.90 milla de distancia
2575 N Court St
- Main Street Pub
2.30 millas de distancia
207 W Main St
- Gibby's
2.31 millas de distancia
126 W Main St
- Wyatt Street Tavern
2.31 millas de distancia
115 Watt St
- Gant's Pizza and Pub
2.39 millas de distancia
114 S Court St
- Woody's Place
Tenga en cuenta que esta información puede variar. Si encuentra algo inexacto, por favor contáctenos
Detalles del Constructor
D.R. Horton
In 1978, D.R. Horton broke ground on our first home in Fort Worth, Texas. Since that day, the company has defined its success not by bricks and mortar, but by the satisfaction of the families that make our houses their homes. Our foundation is a single, guiding principle: a value-first dedication to the individual needs of each and every one of our nation’s homebuyers.
From first-time homebuyers to empty nesters, our family of brands provides a home for every stage in life. Our highly-trained, market experts are where you want to live, from New Jersey to Hawaii, providing unique, personalized services tailored to your individual needs. But the real value comes from the quality construction we put into every home, and the peace of mind that comes with a premium-backed warranty from America’s Number One Homebuilder.
We’ve come a long way, and while more people choose our family of brands over any other builder in the country, we never forget the most important thing of all – the families that choose us for their place to call home.
So continue to live out those dreams, America, and know we’ll be here for you every step of the way.
Hipoteca estimada: $2,276/mes . Ir a la calculadora de hipotecas El pago mensual estimado no incluye los montos de impuestos, primas de seguro y mejoras en el hogar. $0 pago inicial para Veteranos
Casas Cercanas en Circleville, Ohio
Plan Chatham por D.R. Horton
¡guardada en favoritos!
Para ver todas las casas que ha guardado, visite Mis Favoritos en su cuenta.
