- Casas Nuevas
- Georgia
- Área de Atlanta
- Locust Grove, GA
- Oak Ridge Meadows
- Plan Dover II
Plan Dover II
Lista para Construir
136 Cirsium Way, Locust Grove GA 30248
Casa por D.R. Horton
Reclame este listado para actualizar información, obtener acceso a herramientas exclusivas y más!
Última actualización hace 18 horas
- desde $377,500 ¿Qué es lo que quiere decir este rango de precios?
El rango de precios mostrado refleja el precio base de las casas construidas en esta comunidad
Usted debe seleccionar entre las muchos tipos diferentes de casas construidas por este constructor y personalizar su casa nueva con opciones y personalizaciones. - 3 HAB
- 2 BÑ
- 2 GR
- 2,277 SQ FT
Llama para conectar (888) 790-3488
Socios Valiosos

Floorplan 0 1/2
Detalles de la Casa
Destacados
- Casas Unifamiliares
- 2,277 Sq Ft
- 2 Pisos
- 2 Baños
- 3 Cuartos
- 2 Garajes
Plan Dover II Información
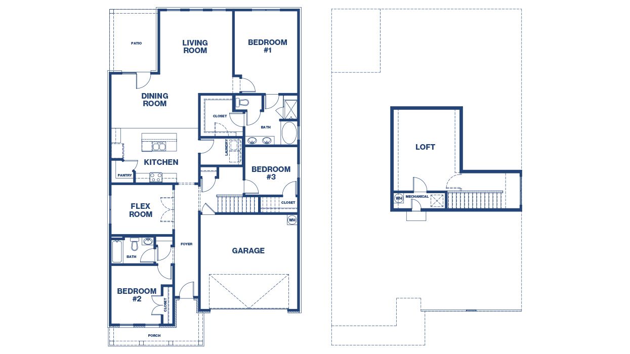
El plano de planta Dover II en Oak Ridge Meadows es una casa de un solo nivel de 3 dormitorios y 2 baños que cubre 2277 pies cuadrados. Este plano ofrece un espacio adicional en el segundo nivel con una sala de recreación más la opción de un dormitorio adicional con baño completo. El garaje para 2 autos garantiza mucho espacio para vehículos y almacenamiento. Al ingresar, hay un dormitorio espacioso y un baño completo ubicado en la parte delantera de la casa para mayor privacidad. Además, hay una sala flexible que es ideal para un estudio de arte, una sala de manualidades o una oficina en casa dedicada. El final del vestíbulo se abre a una cocina bien equipada con una isla que ofrece espacio para asientos en la barra. Las características incluyen gabinetes modernos, electrodomésticos de acero inoxidable y encimeras de cuarzo que le dan a este espacio un toque contemporáneo. Inmediatamente adyacente hay un gran comedor informal y una amplia sala familiar para que todos se mantengan conectados. También hay un gran patio cubierto, ideal para el entretenimiento. En la parte trasera de la casa, encontrará el dormitorio principal con baño en suite que incluye una ducha de entrada baja, tocadores dobles y un inodoro separado. Y para mayor comodidad, hay una lavandería de acceso directo. Si lo que necesita es espacio adicional, este diseño incluye un área adicional opcional en el piso superior que ofrece una amplia sala de juegos, un dormitorio generoso, un baño completo y espacio de almacenamiento adicional. Además, cada casa está equipada con nuestro conjunto líder en la industria de tecnología para hogares inteligentes que le permite monitorear su hogar. Las fotos se utilizan con fines ilustrativos y es posible que no representen la casa real.
Personalización del Hogar
Centro de Planos
View floor plan details for this property.
- Planes de Distribución
- Imagenes de Exteriores
- Imagenes de Interiores
- Otros Medios
Mapa y Direcciones
136 Cirsium Way
Locust Grove, GA 30248
Comunidad y vecindario
Descubra una vida excepcional para adultos activos en Oak Ridge Meadows, nuestra nueva comunidad en Locust Grove, Georgia. Esto es lo que ha estado esperando, una vivienda de un solo nivel con un estilo de bajo mantenimiento que le permitirá disfrutar de todas las actividades y la camaradería que desea en esta etapa de su vida. Nuestro parque de casas modelo está abierto todos los días. Venga a recorrer nuestros 4 modelos decorados y seleccione el plan que mejor se adapte a su estilo de vida. Estas casas de nueva construcción, diseñadas específicamente para personas de 55 años o más, incluyen mantenimiento del césped y tienen características modernas como encimeras de cuarzo, electrodomésticos de acero inoxidable, patios cubiertos, espacios adicionales y más. Pero lo que distingue a esta comunidad es que mantiene su ambiente de vecindad con solo 365 lotes para viviendas. Piscina. Bochas. Pickleball. Parque para perros. Además, nuestro centro comunitario servirá como centro para actividades sociales y reuniones, lo que garantiza que siempre haya algo emocionante sucediendo. Sí, tendrás todo eso, pero en una escala más pequeña, escondido en un entorno de enclave a solo minutos del centro histórico de Locust Grove con fácil acceso a la I-75 para que puedas disfrutar de todo lo que la ciudad de Atlanta tiene para ofrecer. Y los hospitales, el entretenimiento y lo último en compras y restaurantes en Tanger Outlet están a un corto trayecto en auto. Experimenta lo mejor de la vida activa para adultos en Locust Grove. Contáctanos hoy para programar una visita previa y descubrir cómo Oak Ridge Meadows puede mejorar tu estilo de vida. Mas información acerca de Oak Ridge Meadows
Lista para Construir
Construye la casa de tus sueños con el plan Dover II seleccionando tus opciones favoritas. ¡Para la mejor selección, elija su lote en Oak Ridge Meadows hoy!
Comunidad y vecindario
Instituciones educativas cerca de Oak Ridge Meadows
- Henry County Schools
Las escuelas podrían variar. Póngase en contacto con el constructor para obtener más información.
Comodidades del vecindario
Tiendas de Comestibles
- Ingles Market
2.21 millas de distancia
4920 Bill Gardner Pkwy
- Walmart Supercenter
2.56 millas de distancia
4949 Bill Gardner Pkwy
- Publix
4.95 millas de distancia
2730 Highway 155
- Publix
7.30 millas de distancia
3479 Highway 81 E
- Ingles Market
7.64 millas de distancia
1305 W 3rd St
- Ingles Market
Tiendas Especializadas
- Black Rose Cafe & Bar
1.85 millas de distancia
3836 Highway 42
- Crumbles
1.92 millas de distancia
3988 Georgia 42
- Cake GN Shake
1.97 millas de distancia
1000 Tanger Dr
- Black Rose Cafe & Bar
Restaurantes
- Papa Johns
0.99 milla de distancia
2800 Tanger Blvd
- K & J Wings & More
1.54 millas de distancia
4120 Highway 42
- Slices Pizzeria-Locust Grove
1.80 millas de distancia
3844 Highway 42
- The French Market
1.82 millas de distancia
3840 Highway 42
- Peach Pit Bar & Grill
1.84 millas de distancia
3837 Highway 42
- Papa Johns
Cafés
- Maui Wowi Hawaiian
1.97 millas de distancia
1000 Tanger Dr
- Starbucks
2.21 millas de distancia
4920 Bill Gardner Pkwy
- Dunkin'
2.36 millas de distancia
4841 Bill Gardner Pkwy
- Starbucks
2.37 millas de distancia
4837 Bill Gardner Pkwy
- Planet Smoothie
2.47 millas de distancia
4955 Bill Gardner Pkwy
- Maui Wowi Hawaiian
Compras
- Brighton Collectibles
1.59 millas de distancia
67 Higgins Rd
- Gap Factory
1.92 millas de distancia
1000 Tanger Drive
- Jockey Factory Outlet
1.92 millas de distancia
1000 Stanley K Tanger Blvd
- Aerie Outlet
1.97 millas de distancia
1000 Tanger Dr
- Aeropostale
1.97 millas de distancia
1000 Tanger Dr
- Brighton Collectibles
Bares & Vida Nocturna
- The French Market
1.82 millas de distancia
3840 Highway 42
- Tailgater's Sports Bar & Grill
6.79 millas de distancia
1160 Highway 155 S
- Goat Sports Lounge
7.19 millas de distancia
402 Highway 155 S
- Fusion Restaurant & Bar
7.28 millas de distancia
380 Highway 155 S
- Castillo Mexican Bar
7.42 millas de distancia
14 Old Jackson Rd
- The French Market
Tenga en cuenta que esta información puede variar. Si encuentra algo inexacto, por favor contáctenos
Detalles del Constructor
D.R. Horton
In 1978, D.R. Horton broke ground on our first home in Fort Worth, Texas. Since that day, the company has defined its success not by bricks and mortar, but by the satisfaction of the families that make our houses their homes. Our foundation is a single, guiding principle: a value-first dedication to the individual needs of each and every one of our nation’s homebuyers.
From first-time homebuyers to empty nesters, our family of brands provides a home for every stage in life. Our highly-trained, market experts are where you want to live, from New Jersey to Hawaii, providing unique, personalized services tailored to your individual needs. But the real value comes from the quality construction we put into every home, and the peace of mind that comes with a premium-backed warranty from America’s Number One Homebuilder.
We’ve come a long way, and while more people choose our family of brands over any other builder in the country, we never forget the most important thing of all – the families that choose us for their place to call home.
So continue to live out those dreams, America, and know we’ll be here for you every step of the way.
Hipoteca estimada: $2,454/mes . Ir a la calculadora de hipotecas El pago mensual estimado no incluye los montos de impuestos, primas de seguro y mejoras en el hogar. $0 pago inicial para Veteranos
Casas Cercanas en Locust Grove, Georgia
Plan Dover II por D.R. Horton
¡guardada en favoritos!
Para ver todas las casas que ha guardado, visite Mis Favoritos en su cuenta.
