- Casas Nuevas
- Florida
- Área de Jacksonville-St. Augustine
- Green Cove Springs, FL
- Rookery
- 4102 AUDUBON AVENUE (ELSTON)
4102 AUDUBON AVENUE (ELSTON)
Construyendo Ahora
Green Cove Springs, FL 32043
Casa por D.R. Horton
en Rookery
Reclame este listado para actualizar información, obtener acceso a herramientas exclusivas y más!
Última actualización hace 1 día
- desde $385,990 ¿Qué es lo que quiere decir este rango de precios?
El rango de precios mostrado refleja el precio base de las casas construidas en esta comunidad
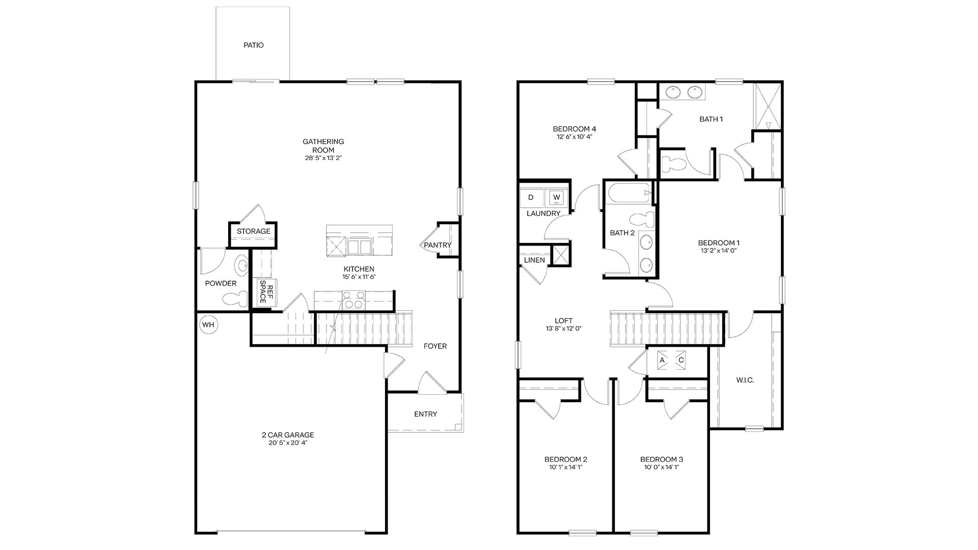
Usted debe seleccionar entre las muchos tipos diferentes de casas construidas por este constructor y personalizar su casa nueva con opciones y personalizaciones. - 4 HAB
- 2.5 BÑ
- 2 GR
- 2,160 SQ FT
Llama para conectar (888) 355-8096
Socios Valiosos

Floorplan 0 1/1
Detalles de la Casa
Destacados
- Casas Unifamiliares
- 2,160 Sq Ft
- 2 Pisos
- 2 Baños
- 1 Medio Baño
- 4 Cuartos
- 2 Garajes
4102 AUDUBON AVENUE (ELSTON) Información de la casa
Personalización del Hogar
Centro de Planos
View floor plan details for this property.
- Planes de Distribución
- Imagenes de Exteriores
- Imagenes de Interiores
- Otros Medios
Mapa y Direcciones
4231 Audubon Ave
Green Cove Springs, FL 32043
Comunidad y vecindario
Construyendo Ahora
Esta casa está actualmente en construcción en 4102 AUDUBON AVENUE y pronto estará disponible para la mudanza en Rookery. ¡Póngase en contacto con D.R. Horton hoy para fijar sus opciones!
Comunidad y vecindario
Instituciones educativas cerca de Rookery
- Clay County School District
Las escuelas podrían variar. Póngase en contacto con el constructor para obtener más información.
Detalles del Constructor
D.R. Horton
In 1978, D.R. Horton broke ground on our first home in Fort Worth, Texas. Since that day, the company has defined its success not by bricks and mortar, but by the satisfaction of the families that make our houses their homes. Our foundation is a single, guiding principle: a value-first dedication to the individual needs of each and every one of our nation’s homebuyers.
From first-time homebuyers to empty nesters, our family of brands provides a home for every stage in life. Our highly-trained, market experts are where you want to live, from New Jersey to Hawaii, providing unique, personalized services tailored to your individual needs. But the real value comes from the quality construction we put into every home, and the peace of mind that comes with a premium-backed warranty from America’s Number One Homebuilder.
We’ve come a long way, and while more people choose our family of brands over any other builder in the country, we never forget the most important thing of all – the families that choose us for their place to call home.
So continue to live out those dreams, America, and know we’ll be here for you every step of the way.
Hipoteca estimada: $2,510/mes . Ir a la calculadora de hipotecas El pago mensual estimado no incluye los montos de impuestos, primas de seguro y mejoras en el hogar. $0 pago inicial para Veteranos
Casas Cercanas en Green Cove Springs, Florida
4102 AUDUBON AVENUE (ELSTON) por D.R. Horton
¡guardada en favoritos!
Para ver todas las casas que ha guardado, visite Mis Favoritos en su cuenta.
