- Casas Nuevas
- Oklahoma
- Área de Oklahoma City
- Newcastle, OK
- Wyndemere
- 512 St. Charles Place (Franklin)
512 St Charles Place (Franklin)
Construyendo Ahora
Newcastle, OK 73065
Casa por D.R. Horton
en Wyndemere
Reclame este listado para actualizar información, obtener acceso a herramientas exclusivas y más!
Última actualización hace 24 horas
- desde $269,990 ¿Qué es lo que quiere decir este rango de precios?
El rango de precios mostrado refleja el precio base de las casas construidas en esta comunidad
Usted debe seleccionar entre las muchos tipos diferentes de casas construidas por este constructor y personalizar su casa nueva con opciones y personalizaciones. - 5 HAB
- 2.5 BÑ
- 2 GR
- 2,013 SQ FT
Llama para conectar (888) 790-3488
Socios Valiosos

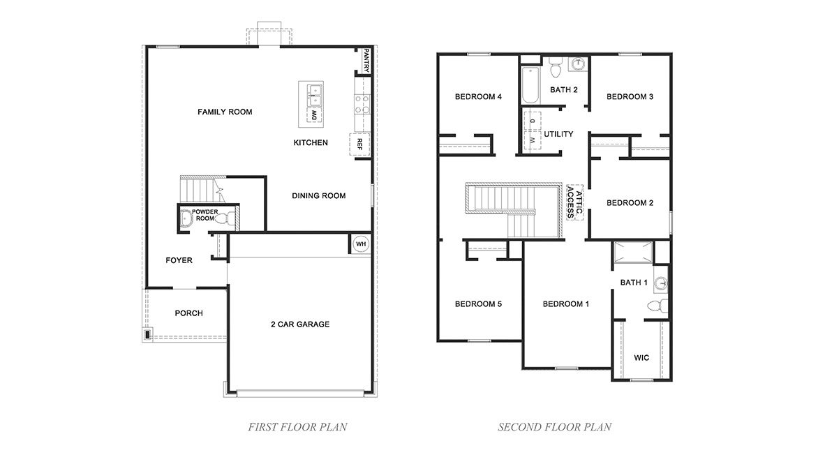
Plano de Planta 1/1
Detalles de la Casa
Destacados
- Casas Unifamiliares
- 2,013 Sq Ft
- 2 Pisos
- 2 Baños
- 1 Medio Baño
- 5 Cuartos
- 2 Garajes
512 St Charles Place (Franklin) Información de la casa
Personalización del Hogar
Centro de Planos
View floor plan details for this property.
- Planes de Distribución
- Imagenes de Exteriores
- Imagenes de Interiores
- Otros Medios
Mapa y Direcciones
816 Park Place Drive
Newcastle, OK 73065
Comunidad y vecindario
Bienvenido a Wyndemere, su puerta de entrada a una vida encantadora en Newcastle, Oklahoma. Ubicado en medio de los serenos paisajes de Newcastle, Wyndemere ofrece una combinación armoniosa de comodidades modernas y belleza natural. Con seis planos de planta cuidadosamente diseñados que van desde 3 a 5 habitaciones, hasta 3 baños y amplios garajes para 2 autos, nos aseguramos de que cada residente encuentre su santuario perfecto. Al entrar a nuestras casas, lo recibirán elegantes exteriores de ladrillo y roca, complementados con gabinetes pintados de gris claro y encimeras de cuarzo. Deléitese con el encanto de los lujosos pisos con apariencia de madera y mímese en el ambiente tipo spa de los atemporales bordes de ducha con azulejos de mármol de 12x24. Además, nuestras casas están equipadas con funciones de ahorro de energía y tecnología de vanguardia para el hogar inteligente, lo que eleva su experiencia de vida a nuevos niveles de comodidad y eficiencia. Ubicada en Newcastle, nuestra comunidad disfruta del entorno sereno y el vibrante espíritu comunitario que definen esta encantadora ciudad. Con sus vecindarios amigables, escuelas de primer nivel y abundantes oportunidades recreativas, Newcastle encarna la experiencia de ciudad natal estadounidense por excelencia. Descubra el epítome de la vida moderna en Wyndemere y embárquese en un viaje de comodidad y lujo incomparables. Contáctenos hoy para programar un recorrido y hacer de Wyndemere su nuevo hogar en Newcastle, Oklahoma. Mas información acerca de Wyndemere
Construyendo Ahora
Esta casa está actualmente en construcción en 512 St Charles Place y pronto estará disponible para la mudanza en Wyndemere. ¡Póngase en contacto con D.R. Horton hoy para fijar sus opciones!
Comunidad y vecindario
Instituciones educativas cerca de Wyndemere
- Newcastle Public Schools
- New Castle School District
Las escuelas podrían variar. Póngase en contacto con el constructor para obtener más información.
Comodidades del vecindario
Tiendas de Comestibles
- Walmart Supercenter
2.72 millas de distancia
3300 Tri City Dr
- Bell's
5.86 millas de distancia
1174 County Street 2970
- Walmart Neighborhood Market
6.03 millas de distancia
2900 SW 134th St
- Walmart Neighborhood Market
6.86 millas de distancia
3571 W Rock Creek Rd
- Bishops' Storehouse
6.91 millas de distancia
11224 S Meridian Ave
- Walmart Supercenter
Tiendas Especializadas
- Newcastle Donuts & Bakery
0.83 milla de distancia
718 N Main St
- Walmart Bakery
2.72 millas de distancia
3300 Tri City Dr
- Deedee's Cakes
3.49 millas de distancia
208 NE 85th St
- Sweet Manna Bakery LLC
5.03 millas de distancia
6817 E Highway 37
- Walmart Bakery
6.03 millas de distancia
2900 SW 134th St
- Newcastle Donuts & Bakery
Restaurantes
- SONIC Drive-in
0.49 milla de distancia
4344 Sonic Drive
- The Pizza Shop
0.49 milla de distancia
632 NW 32nd St
- Tri-City Diner LLC
0.81 milla de distancia
1107 Highway 37
- SONIC Drive-in
Cafés
- Flying Java Coffee
0.78 milla de distancia
1013 N Main St
- Kim's Donuts
0.84 milla de distancia
520 N Main St
- Dunkin'
1.66 millas de distancia
235 NW 24th St
- Castle Donut
2.43 millas de distancia
902 NW 32nd St
- 49 Donuts
6.58 millas de distancia
14900 S Western Ave
- Flying Java Coffee
Compras
- Cato Fashions
0.49 milla de distancia
621 NW 32nd St
- Smokin Cherry Boutique
2.43 millas de distancia
914 NW 32nd St
- Walmart Supercenter
2.72 millas de distancia
3300 Tri City Dr
- Crawford Clothing LLC
5.89 millas de distancia
2801 SW 139th St
- Lularoe Christy Pine
6.15 millas de distancia
705 Cedar Springs Dr
- Cato Fashions
Bares & Vida Nocturna
- Front Row Sports Bar
1.84 millas de distancia
2457 Highway 62 Service Rd
- North Bar
1.84 millas de distancia
2457 Highway 62 Service Rd
- Brandt's Bar
4.54 millas de distancia
14924 S Meridian Ave
- Jr's Golf Course
4.62 millas de distancia
4041 SW 149th St
- Jr's Pub & Grill
4.62 millas de distancia
4041 SW 149th St
- Front Row Sports Bar
Tenga en cuenta que esta información puede variar. Si encuentra algo inexacto, por favor contáctenos
Detalles del Constructor
D.R. Horton
In 1978, D.R. Horton broke ground on our first home in Fort Worth, Texas. Since that day, the company has defined its success not by bricks and mortar, but by the satisfaction of the families that make our houses their homes. Our foundation is a single, guiding principle: a value-first dedication to the individual needs of each and every one of our nation’s homebuyers.
From first-time homebuyers to empty nesters, our family of brands provides a home for every stage in life. Our highly-trained, market experts are where you want to live, from New Jersey to Hawaii, providing unique, personalized services tailored to your individual needs. But the real value comes from the quality construction we put into every home, and the peace of mind that comes with a premium-backed warranty from America’s Number One Homebuilder.
We’ve come a long way, and while more people choose our family of brands over any other builder in the country, we never forget the most important thing of all – the families that choose us for their place to call home.
So continue to live out those dreams, America, and know we’ll be here for you every step of the way.
Hipoteca estimada: $1,755/mes . Ir a la calculadora de hipotecas El pago mensual estimado no incluye los montos de impuestos, primas de seguro y mejoras en el hogar. $0 pago inicial para Veteranos
Casas Cercanas en Newcastle, Oklahoma
512 St Charles Place (Franklin) por D.R. Horton
¡guardada en favoritos!
Para ver todas las casas que ha guardado, visite Mis Favoritos en su cuenta.
