- Casas Nuevas
- Nebraska
- Área de Omaha
- Papillion, NE
- Oak Leaf
- 12934 S 66TH AVE (HAMILTON)
12934 S 66TH AVE (HAMILTON)
Construyendo Ahora
Papillion, NE 68133
Casa por D.R. Horton Basic
en Oak Leaf
Reclame este listado para actualizar información, obtener acceso a herramientas exclusivas y más!
Última actualización hace 3 días
- desde $409,990 ¿Qué es lo que quiere decir este rango de precios?
El rango de precios mostrado refleja el precio base de las casas construidas en esta comunidad
Usted debe seleccionar entre las muchos tipos diferentes de casas construidas por este constructor y personalizar su casa nueva con opciones y personalizaciones. - 4 HAB
- 3 BÑ
- 2 GR
- 2,190 SQ FT
Llama para conectar (888) 790-3488
Socios Valiosos

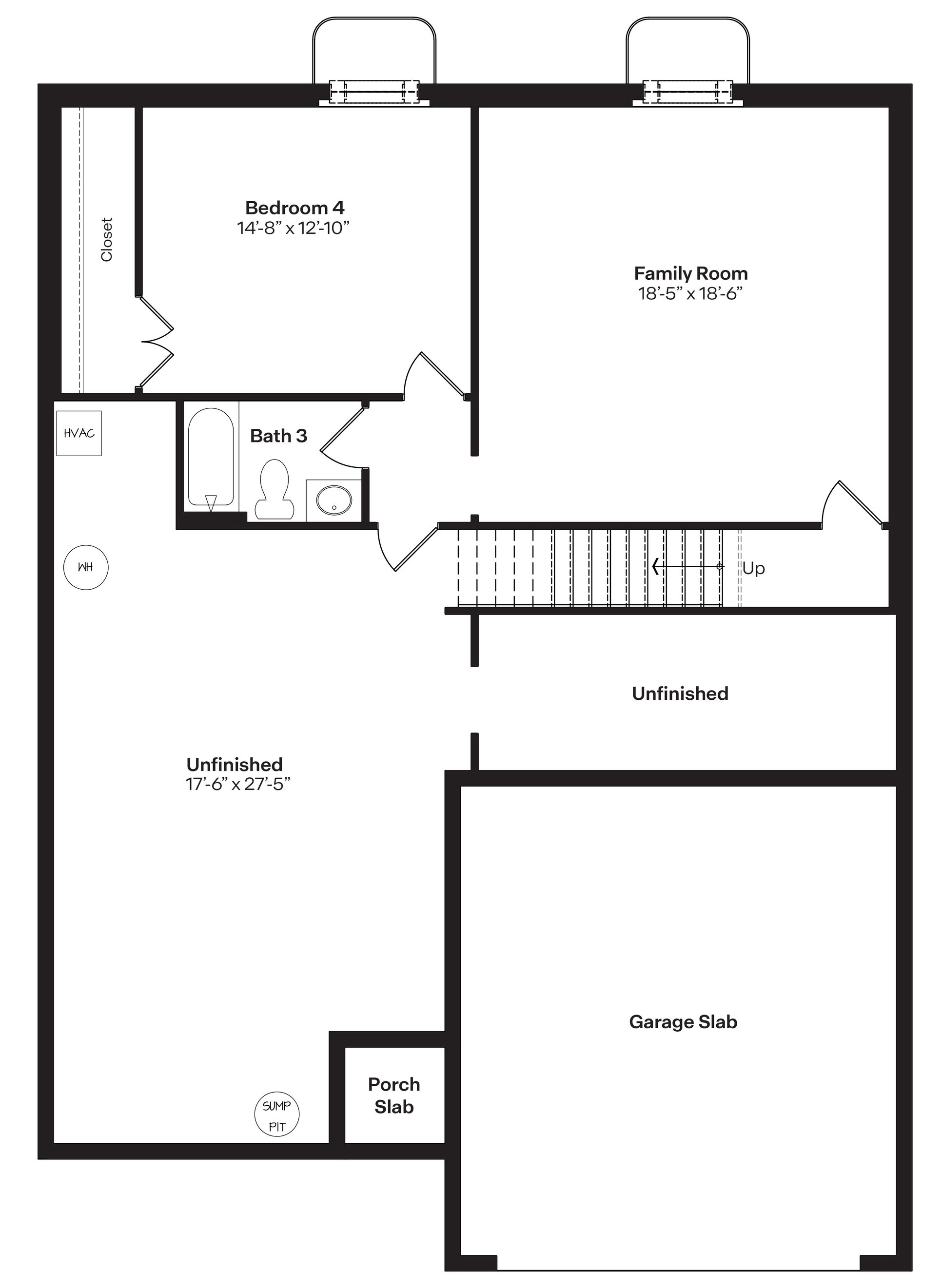
Plano de Planta 1/3
Detalles de la Casa
Destacados
- Casas Unifamiliares
- 2,190 Sq Ft
- 1 Piso
- 3 Baños
- 4 Cuartos
- 2 Garajes
12934 S 66TH AVE (HAMILTON) Información de la casa
Personalización del Hogar
Centro de Planos
View floor plan details for this property.
- Planes de Distribución
- Imagenes de Exteriores
- Imagenes de Interiores
- Otros Medios
Mapa y Direcciones
6615 Bluebell St
Papillion, NE 68133
Comunidad y vecindario
Construyendo Ahora
Esta casa está actualmente en construcción en 12934 S 66TH AVE y pronto estará disponible para la mudanza en Oak Leaf. ¡Póngase en contacto con D.R. Horton Basic hoy para fijar sus opciones!
Comunidad y vecindario
Instituciones educativas cerca de Oak Leaf
- South Sarpy District 46
Las escuelas podrían variar. Póngase en contacto con el constructor para obtener más información.
Detalles del Constructor
D.R. Horton Basic
Hipoteca estimada: $2,666/mes . Ir a la calculadora de hipotecas El pago mensual estimado no incluye los montos de impuestos, primas de seguro y mejoras en el hogar. $0 pago inicial para Veteranos
Casas Cercanas en Papillion, Nebraska
12934 S 66TH AVE (HAMILTON) por D.R. Horton Basic
¡guardada en favoritos!
Para ver todas las casas que ha guardado, visite Mis Favoritos en su cuenta.
