- Casas Nuevas
- Indiana
- Área de Evansville
- Newburgh, IN
- Hillside Meadows
- Plan Hawthorne
Reclame este listado para actualizar información, obtener acceso a herramientas exclusivas y más!
Última actualización hace 20 horas
- desde $312,800 ¿Qué es lo que quiere decir este rango de precios?
El rango de precios mostrado refleja el precio base de las casas construidas en esta comunidad
Usted debe seleccionar entre las muchos tipos diferentes de casas construidas por este constructor y personalizar su casa nueva con opciones y personalizaciones. - 3 HAB
- 2 BÑ
- 2,214 SQ FT
Llama para conectar (888) 790-3488
Socios Valiosos

Exterior 1/13
Detalles de la Casa
Destacados
- Casas Unifamiliares
- 2,214 Sq Ft
- 2 Baños
- 3 Cuartos
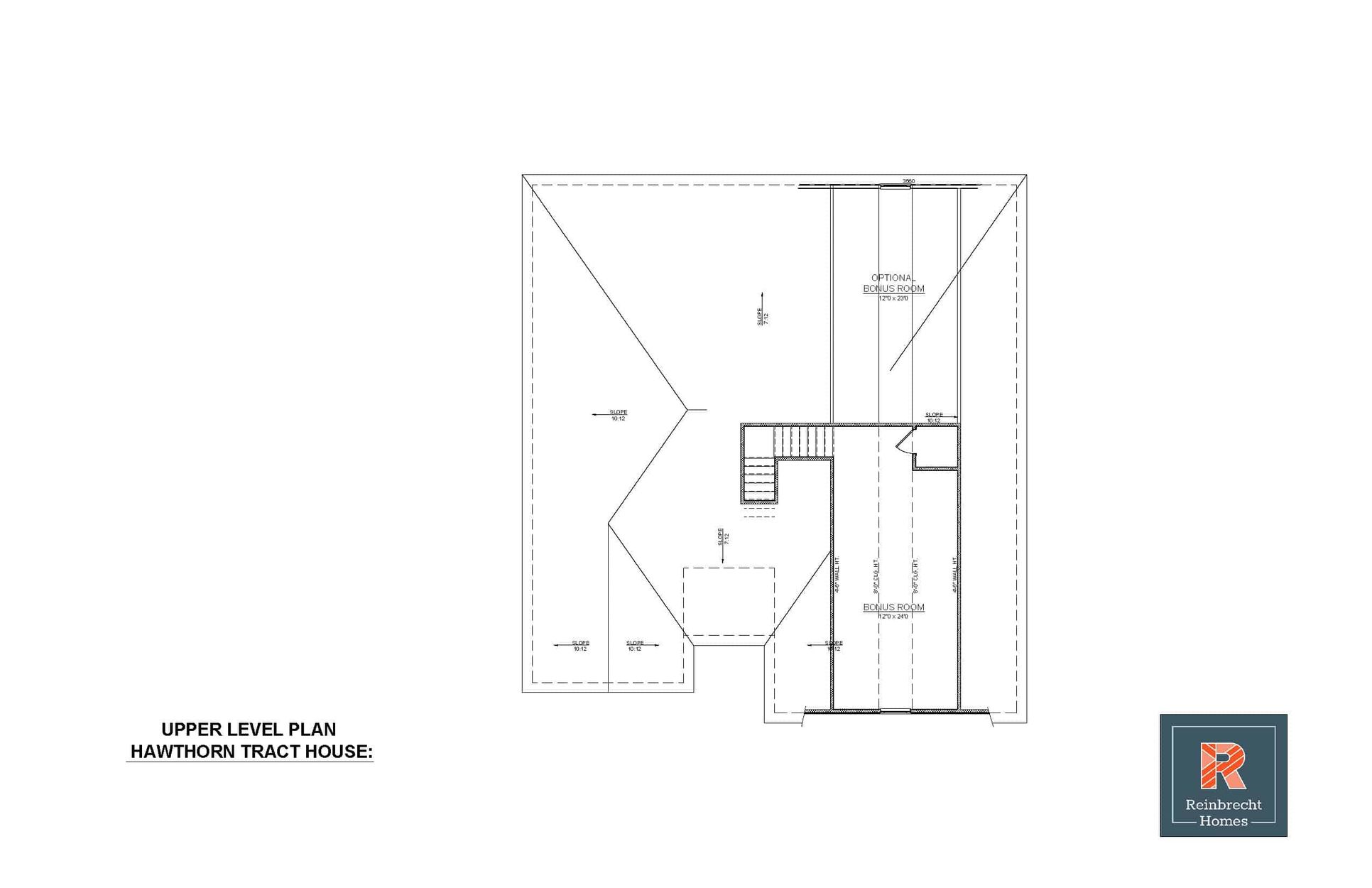
Plan Hawthorne Información
El plano Hawthorne tiene 2214 pies cuadrados con 3 habitaciones, 2 baños y un garaje para dos autos. Este plano de concepto abierto cuenta con techos de trey opcionales en la sala de bonificación de la sala de estar principal y un amplio vestidor principal.
Mapa y Direcciones
Newburgh, IN 47630
Comunidad y vecindario
Hillside Meadows es una comunidad ubicada a la salida de Sharon Road en Newburgh, IN. Esta comunidad se compone de hermosas casas unifamiliares ubicadas en lotes grandes y bien cuidados. Las casas en esta comunidad son todas de dos pisos con exteriores de ladrillo y garajes adjuntos para dos autos. Hay una variedad de planos de planta para elegir, todos muy espaciosos. El complejo también cuenta con una casa club y una piscina para que disfruten los residentes.
Hay dos escuelas en la comunidad de Hillside Meadows ubicadas en Sharon Road en Newburgh, IN. La primera es la Escuela Primaria Meadowbrook, que atiende a estudiantes desde jardín de infantes hasta quinto grado. La segunda es Castle High School, que atiende a estudiantes de sexto a duodécimo grado. Una de esas atracciones es el Museo de Artes, Historia y Ciencias de Evansville. Otras atracciones en el área incluyen el Mesker Park Zoo & Botanic Garden, el John James Audubon State Park y el Angel Mounds State Historic Site. Para aquellos que buscan una experiencia más activa, también hay varios campos de golf y rutas de senderismo en la zona.
Esta pequeña y pintoresca comunidad alberga dos centros comerciales y varios restaurantes. El primer centro comercial, Hillside Meadows Shopping Center, alberga una tienda de comestibles, una farmacia, algunas tiendas de ropa y una variedad de otros negocios. El segundo centro comercial, Meadows Shopping Center, alberga algunas tiendas de ropa, un par de restaurantes y una sala de cine. También hay varios restaurantes de comida rápida y algunos restaurantes familiares ubicados en o alrededor de la comunidad. ¡Hillside Meadows es un gran lugar para llamar hogar! Mas información acerca de Hillside Meadows
Lista para Construir
Construye la casa de tus sueños con el plan Hawthorne seleccionando tus opciones favoritas. ¡Para la mejor selección, elija su lote en Hillside Meadows hoy!
Comunidad y vecindario
Instituciones educativas cerca de Hillside Meadows
- Warrick County School Corporation
- Newburgh Elementary School
- Castle North Middle School
- Castle High School
Las escuelas podrían variar. Póngase en contacto con el constructor para obtener más información.
Puntos de Interés Locales
- Lago
Instituciones educativas cercanas
Niveles KG a 5.
Niveles 6 a 8.
Niveles 9 a 12.
Las instituciones podrían variar. Le recomendamos verificar con el distrito escolar local la asignación de la escuela y el proceso de inscripción.
Comodidades del vecindario
Tiendas de Comestibles
- Schnucks
2.15 millas de distancia
8301 Bell Oaks Dr
- Walmart Supercenter
2.35 millas de distancia
8599 High Pointe Dr
- Ruler Foods
2.39 millas de distancia
7844 W State Route 66
- Himalaya Food Mart
3.73 millas de distancia
6720 Washington Ave
- The Fresh Market
4.12 millas de distancia
6401 E Lloyd Expy
- Schnucks
Tiendas Especializadas
- Cleo's Bakery
0.02 milla de distancia
9 W Jennings St
- Bea Sweet Treats
2.13 millas de distancia
4111 Merchant Dr
- Walmart Bakery
2.35 millas de distancia
8599 High Pointe Dr
- Donut Bank
2.38 millas de distancia
3988 State Route 261
- Shaklee Distributor
2.99 millas de distancia
923 Nottingham Ct
- Cleo's Bakery
Restaurantes
- Cafe Arazu
0.03 milla de distancia
17 W Jennings St
- The Refinery
0.22 milla de distancia
224 W Jennings St
- Hardesty Restaurants LLC
0.40 milla de distancia
514 W Main St
- Cricket's Bar & Grill
0.40 milla de distancia
518 W Main St
- Tin Fish
0.44 milla de distancia
707 State St
- Cafe Arazu
Cafés
- The Refinery
0.22 milla de distancia
224 W Jennings St
- Starbucks
2.09 millas de distancia
7755 State Road 66
- Dunkin'
2.32 millas de distancia
3955 Orchard Ln
- Starbucks
4.12 millas de distancia
6401 E Lloyd Expy
- Starbucks
4.14 millas de distancia
6625 E Lloyd Expy
- The Refinery
Compras
- Flutter
0.01 milla de distancia
100 State St
- Oak Modern
0.03 milla de distancia
5 State St
- House of White
0.24 milla de distancia
3 Market St
- Three Oaks Lifestyle Boutique
0.25 milla de distancia
300 W Jennings St
- My Momma's Wish Boutique
1.90 millas de distancia
7020 Savannah Dr
- Flutter
Bares & Vida Nocturna
- Cricket's Bar & Grill
0.40 milla de distancia
518 W Main St
- Knob Hill Tavern
0.74 milla de distancia
1016 State Route 662 W
- Neighbors
1.99 millas de distancia
4222 Bell Rd
- Prime Time Pub & Grill
2.16 millas de distancia
8177 Bell Oaks Dr
- Turoni's Pizzery & Brewery
2.17 millas de distancia
8011 Bell Oaks Dr
- Cricket's Bar & Grill
Tenga en cuenta que esta información puede variar. Si encuentra algo inexacto, por favor contáctenos
Detalles del Constructor
Reinbrecht Homes
Hipoteca estimada: $2,034/mes . Ir a la calculadora de hipotecas El pago mensual estimado no incluye los montos de impuestos, primas de seguro y mejoras en el hogar. $0 pago inicial para Veteranos
Casas Cercanas en Newburgh, Indiana
Plan Hawthorne por Reinbrecht Homes
¡guardada en favoritos!
Para ver todas las casas que ha guardado, visite Mis Favoritos en su cuenta.