- Casas Nuevas
- Mississippi
- Área de Biloxi
- Lucedale, MS
- Firefly
- Plan JASMINE
Reclame este listado para actualizar información, obtener acceso a herramientas exclusivas y más!
Última actualización hace 3 días
- desde $281,900 ¿Qué es lo que quiere decir este rango de precios?
El rango de precios mostrado refleja el precio base de las casas construidas en esta comunidad
Usted debe seleccionar entre las muchos tipos diferentes de casas construidas por este constructor y personalizar su casa nueva con opciones y personalizaciones. - 4 HAB
- 2 BÑ
- 2 GR
- 2,091 SQ FT
Llama para conectar (888) 790-3488
Socios Valiosos

Floorplan 0 1/1
Detalles de la Casa
Destacados
- Casas Unifamiliares
- 2,091 Sq Ft
- 1 Piso
- 2 Baños
- 4 Cuartos
- 2 Garajes
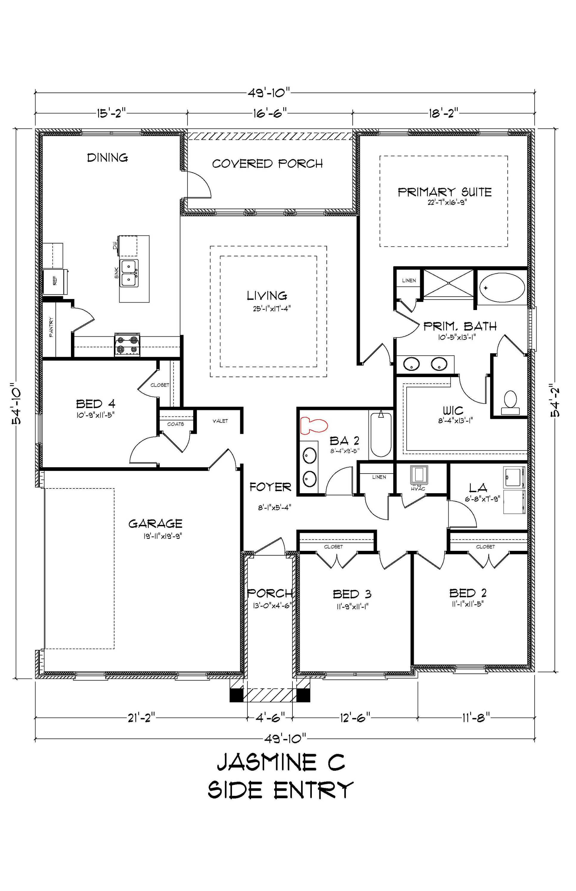
Plan JASMINE Información
The Jasmine es uno de nuestros planos de planta de una sola planta que se presentan en nuestra comunidad Firefly en Lucedale, Mississippi. Este plano bien diseñado tiene 4 habitaciones y 2 baños en más de 2000 pies cuadrados de espacio con un garaje para 2 autos. Al ingresar a la casa desde el porche delantero a un lado, hay dos habitaciones ubicadas cerca de un baño completo y acceso al lavadero. Un dormitorio adicional está directamente al otro lado del vestíbulo, que también permite el acceso al garaje. The Jasmine tiene una fabulosa cocina abierta, que cuenta con una despensa y una gran isla con encimeras de cuarzo, perfectas para un bar-comedor. La cocina tiene vista a las áreas de comedor y sala de estar que conducen al exterior a un gran porche cubierto para una sala de estar y entretenimiento extendida. El espacioso dormitorio principal, ubicado en la parte trasera de la casa para mayor privacidad, ofrece luz natural a través de grandes ventanales que crean un refugio acogedor y espacioso. El baño privado tiene un tocador doble con encimera de cuarzo, bañera amplia, ducha de pie, inodoro separado y un gran vestidor. El Jasmine incluye un paquete de tecnología para hogares inteligentes Home is Connected que le permite controlar su hogar con su dispositivo inteligente, ya sea que esté cerca o lejos. Las imágenes pueden ser de una casa similar y no necesariamente de la propiedad en cuestión. Las imágenes son solo representativas. ¡Programe su visita para ver el Jasmine hoy mismo!
Personalización del Hogar
Centro de Planos
View floor plan details for this property.
- Planes de Distribución
- Imagenes de Exteriores
- Imagenes de Interiores
- Otros Medios
Mapa y Direcciones
101 Firefly Drive
Lucedale, MS 39452
Comunidad y vecindario
Encuentre su nuevo hogar en nuestra comunidad Firefly en Lucedale, Mississippi. Esta acogedora comunidad ofrece actualmente varios planos de planta de nuestra serie Tradition. Estas casas de un solo piso tienen entre 3 y 4 habitaciones, hasta 3.5 baños, garajes para 2 autos y entre 2,246 y 2,516 pies cuadrados de espacio habitable agradable. Al ingresar a estas casas, quedará cautivado por la atención al detalle y la abundancia de características incluidas en todas partes. Las cocinas cuentan con encimeras de granito con fregadero estilo estilo hacienda de acero inoxidable, electrodomésticos de acero inoxidable, amplio espacio de despensa y una isla central perfecta para recibir invitados. Las casas también cuentan con un porche trasero cubierto, perfecto para disfrutar del clima. Estas casas ofrecen un paquete de iluminación LED que agrega un atractivo moderno y agradable y crea un ambiente cálido. Las casas tienen un exterior encantador y duradero, que combina el exterior de ladrillo y el revestimiento según el plano. También hemos equipado las casas en Firefly con tecnología de hogar inteligente que permite a los residentes controlar y administrar convenientemente varios aspectos de sus hogares, mejorando el confort, la conveniencia y brindándoles tranquilidad. Agricola, una comunidad en Lucedale, es un excelente lugar para vivir. La comunidad ofrece a los residentes oportunidades educativas superiores, instalaciones de atención médica de alta calidad y un fuerte liderazgo local. También disfrutará de una amplia variedad de oportunidades recreativas. Ubicado justo al este de MS-613, Firefly está ubicado en un hermoso campo junto a E Fire Department Road. Tenemos una hermosa casa modelo del plano de Emma. ¡Estas casas son hermosas, así que programe su recorrido hoy! Mas información acerca de Firefly
Lista para Construir
Construye la casa de tus sueños con el plan JASMINE seleccionando tus opciones favoritas. ¡Para la mejor selección, elija su lote en Firefly hoy!
Comunidad y vecindario
Instituciones educativas cerca de Firefly
- George County School District
- Agricola Elementary School
- George County Middle School
- George County High School
Las escuelas podrían variar. Póngase en contacto con el constructor para obtener más información.
Instituciones educativas cercanas
Niveles PK a 6.
Niveles 7 a 8.
Niveles 9 a 12.
Las instituciones podrían variar. Le recomendamos verificar con el distrito escolar local la asignación de la escuela y el proceso de inscripción.
Comodidades del vecindario
Tiendas de Comestibles
- LL Quickmart
6.60 millas de distancia
1286 Highway 63 S
- Walmart Supercenter
7.88 millas de distancia
11228 Old 63 S
- Wayne Lee's Grocery & Market
7.90 millas de distancia
12109 Old 63 S
- Wheel-Inn
8.02 millas de distancia
26500 Highway 63
- R & R Food Market
8.34 millas de distancia
181 Winter St
- LL Quickmart
Tiendas Especializadas
- Walmart Bakery
7.88 millas de distancia
11228 Old 63 S
- Lucedale Herb Shop
8.58 millas de distancia
5192 Main St
- Walmart Bakery
Restaurantes
- Hunt Brothers Pizza
0.52 milla de distancia
6241 Highway 613
- Hunt Brothers Pizza
5.18 millas de distancia
6152 Highway 612
- Champs Chicken
7.78 millas de distancia
7140 Highway 198 E
- Lucedale Donut & Breakfast
7.79 millas de distancia
7116 Highway 198 E
- Subway
7.88 millas de distancia
11228 Old 63 S
- Hunt Brothers Pizza
Compras
- Walmart Supercenter
7.88 millas de distancia
11228 Old 63 S
- Cato Fashions
7.88 millas de distancia
11231 Old 63 S
- Factory Connection
7.90 millas de distancia
12102 Old 63 S
- Shoe Show
7.90 millas de distancia
12102 Old 63 S
- Hibbett Sports
7.90 millas de distancia
12112 Old 63 S
- Walmart Supercenter
Tenga en cuenta que esta información puede variar. Si encuentra algo inexacto, por favor contáctenos
Detalles del Constructor
D.R. Horton
In 1978, D.R. Horton broke ground on our first home in Fort Worth, Texas. Since that day, the company has defined its success not by bricks and mortar, but by the satisfaction of the families that make our houses their homes. Our foundation is a single, guiding principle: a value-first dedication to the individual needs of each and every one of our nation’s homebuyers.
From first-time homebuyers to empty nesters, our family of brands provides a home for every stage in life. Our highly-trained, market experts are where you want to live, from New Jersey to Hawaii, providing unique, personalized services tailored to your individual needs. But the real value comes from the quality construction we put into every home, and the peace of mind that comes with a premium-backed warranty from America’s Number One Homebuilder.
We’ve come a long way, and while more people choose our family of brands over any other builder in the country, we never forget the most important thing of all – the families that choose us for their place to call home.
So continue to live out those dreams, America, and know we’ll be here for you every step of the way.
Hipoteca estimada: $1,833/mes . Ir a la calculadora de hipotecas El pago mensual estimado no incluye los montos de impuestos, primas de seguro y mejoras en el hogar. $0 pago inicial para Veteranos
Casas Cercanas en Lucedale, Mississippi
Plan JASMINE por D.R. Horton
¡guardada en favoritos!
Para ver todas las casas que ha guardado, visite Mis Favoritos en su cuenta.
