- Casas Nuevas
- South Carolina
- Área de Columbia
- Gilbert, SC
- Sease's Pond
- Plan MANNING
Plan MANNING
Lista para Construir
123 Ruby Prince Road, Gilbert SC 29054
Casa por D.R. Horton
en Sease's Pond
Reclame este listado para actualizar información, obtener acceso a herramientas exclusivas y más!
Última actualización hace 21 horas
- desde $386,990 ¿Qué es lo que quiere decir este rango de precios?
El rango de precios mostrado refleja el precio base de las casas construidas en esta comunidad
Usted debe seleccionar entre las muchos tipos diferentes de casas construidas por este constructor y personalizar su casa nueva con opciones y personalizaciones. - 4 HAB
- 2.5 BÑ
- 2 GR
- 2,203 SQ FT
Llama para conectar (888) 355-8096
Socios Valiosos

Floorplan 0 1/1
Detalles de la Casa
Destacados
- Casas Unifamiliares
- 2,203 Sq Ft
- 2 Pisos
- 2 Baños
- 1 Medio Baño
- 4 Cuartos
- 2 Garajes
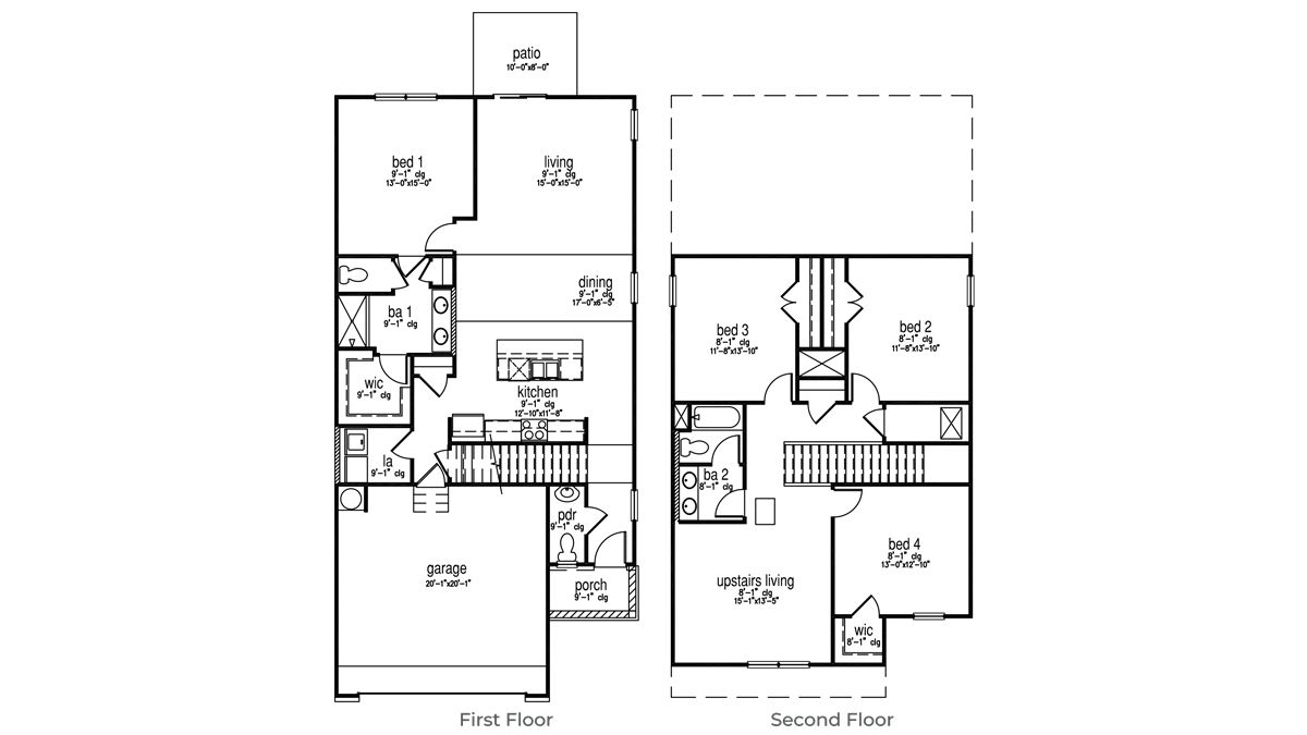
Plan MANNING Información
¡Encuentra la casa de tus sueños en Manning at Seases Pond! Manning es un plano de planta versátil con amplio espacio habitable, que incluye 4 dormitorios, 2,5 baños, garaje para 2 autos y 2203 pies cuadrados. La suite principal se encuentra convenientemente en el primer piso y los 3 dormitorios restantes están en el segundo nivel. Disfruta de una cocina, comedor y sala de estar de concepto abierto, lo que crea el espacio perfecto para el entretenimiento. ¡Disfruta también de la tecnología Smart Home y mucho más! *Las fotos que ves aquí son solo para fines ilustrativos, las características, opciones, colores y selecciones interiores y exteriores variarán.
Personalización del Hogar
Centro de Planos
View floor plan details for this property.
- Planes de Distribución
- Imagenes de Exteriores
- Imagenes de Interiores
- Otros Medios
Mapa y Direcciones
123 Ruby Prince Road
Gilbert, SC 29054
Comunidad y vecindario
Bienvenido a Sease's Pond, una comunidad cuidadosamente diseñada en las afueras de Lexington en Gilbert, SC. Ubicado alrededor de un estanque sereno con un muelle comunitario, este vecindario ofrece el equilibrio perfecto entre tranquilidad y comodidad. Elija entre lotes para viviendas en el estanque o aquellos con áreas boscosas tranquilas para mayor privacidad. Las casas modernas y espaciosas de 1 y 2 pisos aquí seguramente impresionarán. Disfrute de las características elevadas en Seases Pond, que incluyen revestimiento duradero Hardie Plank, elegantes salpicaderos de azulejos en la cocina y elegantes encimeras de cuarzo. Ubicado a solo minutos de la ciudad de Lexington y el lago Murray, Seases Pond ofrece fácil acceso a la I-20, lo que hace que su viaje diario o escapadas de fin de semana sean muy fáciles. Vivir en Sease's Pond también lo ubicará convenientemente a minutos de escuelas locales, restaurantes y entretenimiento. Seases Pond es donde la vida moderna se encuentra con la belleza natural. ¡Venga a encontrar su hogar perfecto hoy! Mas información acerca de Sease's Pond
Lista para Construir
Construye la casa de tus sueños con el plan MANNING seleccionando tus opciones favoritas. ¡Para la mejor selección, elija su lote en Sease's Pond hoy!
Comunidad y vecindario
Instituciones educativas cerca de Sease's Pond
- Lexington 01 School District
- Centerville Elementary
- Gilbert Middle School
- Gilbert High School
Las escuelas podrían variar. Póngase en contacto con el constructor para obtener más información.
Instituciones educativas cercanas
Niveles PK a 5.
Niveles 6 a 8.
Niveles 9 a 12.
Las instituciones podrían variar. Le recomendamos verificar con el distrito escolar local la asignación de la escuela y el proceso de inscripción.
Comodidades del vecindario
Tiendas de Comestibles
- Los Arcos Mexican Market
0.25 milla de distancia
3738 Augusta Hwy
- Gilbert IGA #38
2.52 millas de distancia
4760 Augusta Hwy
- Lowes Foods
4.34 millas de distancia
2440 Augusta Hwy
- Publix
4.50 millas de distancia
847 Highway 378
- New York Butcher Shoppe
7.96 millas de distancia
402 W Main St
- Los Arcos Mexican Market
Tiendas Especializadas
- Breadwinner LLC
2.26 millas de distancia
275 Kelsey Glen Dr
- Soda City Cakes LLC
3.80 millas de distancia
605 Blue Lake Ln
- Carolina Keto Cakes
4.51 millas de distancia
255 Charter Oak Rd
- Cafe Strudel of Lexington, LLC
8.33 millas de distancia
309 S Lake Dr
- Breadwinner LLC
Restaurantes
- Domino's
0.64 milla de distancia
4079 Augusta Hwy
- Subway
0.64 milla de distancia
4079 Augusta Hwy
- La Mesa
1.64 millas de distancia
4456 Augusta Hwy
- Guadalupana Convenience Store
3.07 millas de distancia
505 Wire Rd
- Hunt Brothers Pizza
3.30 millas de distancia
108 Main St
- Domino's
Cafés
- Starbucks
4.42 millas de distancia
2418 Augusta Hwy
- Starbucks
6.25 millas de distancia
356 Longs Pond Rd
- Dunkin'
7.14 millas de distancia
1120 W Main St
- Hebrews Cafe
8.28 millas de distancia
442 E Railroad Ave
- Starbucks
8.45 millas de distancia
200 E Church St
- Starbucks
Compras
- Auburn Mermaid Boutique
0.08 milla de distancia
3824 Augusta Hwy
- Southern Blu
3.88 millas de distancia
108 Jamestowne Ct
- The Pineapple Princess Boutique
4.50 millas de distancia
851 Highway 378
- Luvlee Boutique LLC
6.26 millas de distancia
8 Due West Dr
- Pink Pineapple Boutique
6.43 millas de distancia
1704 W Main St
- Auburn Mermaid Boutique
Bares & Vida Nocturna
- Regal Lounge LLC
4.02 millas de distancia
124 Glenellen Rd
- Highway 378 Sports Bar & Grill
4.17 millas de distancia
3007 Highway 378
- Schooners Bar & Grill
6.25 millas de distancia
364 Longs Pond Rd
- Twisted Root Bar & Grill
6.91 millas de distancia
168 Highway 378
- Bodhi Thai Dinning
8.33 millas de distancia
126 E Main St
- Regal Lounge LLC
Tenga en cuenta que esta información puede variar. Si encuentra algo inexacto, por favor contáctenos
Detalles del Constructor
D.R. Horton
In 1978, D.R. Horton broke ground on our first home in Fort Worth, Texas. Since that day, the company has defined its success not by bricks and mortar, but by the satisfaction of the families that make our houses their homes. Our foundation is a single, guiding principle: a value-first dedication to the individual needs of each and every one of our nation’s homebuyers.
From first-time homebuyers to empty nesters, our family of brands provides a home for every stage in life. Our highly-trained, market experts are where you want to live, from New Jersey to Hawaii, providing unique, personalized services tailored to your individual needs. But the real value comes from the quality construction we put into every home, and the peace of mind that comes with a premium-backed warranty from America’s Number One Homebuilder.
We’ve come a long way, and while more people choose our family of brands over any other builder in the country, we never forget the most important thing of all – the families that choose us for their place to call home.
So continue to live out those dreams, America, and know we’ll be here for you every step of the way.
Hipoteca estimada: $2,516/mes . Ir a la calculadora de hipotecas El pago mensual estimado no incluye los montos de impuestos, primas de seguro y mejoras en el hogar. $0 pago inicial para Veteranos
Casas Cercanas en Gilbert, South Carolina
Plan MANNING por D.R. Horton
¡guardada en favoritos!
Para ver todas las casas que ha guardado, visite Mis Favoritos en su cuenta.
