- Casas Nuevas
- Florida
- Área de Tampa-St. Petersburg
- Ruskin, FL
- Ruskin Preserve Townhomes
- 431 Warm Heron Pl (Pearson A)
431 Warm Heron Pl (Pearson A)
Construyendo Ahora
Ruskin, FL 33570
Casa por D.R. Horton Basic
Reclame este listado para actualizar información, obtener acceso a herramientas exclusivas y más!
Última actualización hace 1 día
- desde $287,990 ¿Qué es lo que quiere decir este rango de precios?
El rango de precios mostrado refleja el precio base de las casas construidas en esta comunidad
Usted debe seleccionar entre las muchos tipos diferentes de casas construidas por este constructor y personalizar su casa nueva con opciones y personalizaciones. - 3 HAB
- 2.5 BÑ
- 1 GR
- 1,463 SQ FT
Llama para conectar (888) 355-8096
Socios Valiosos

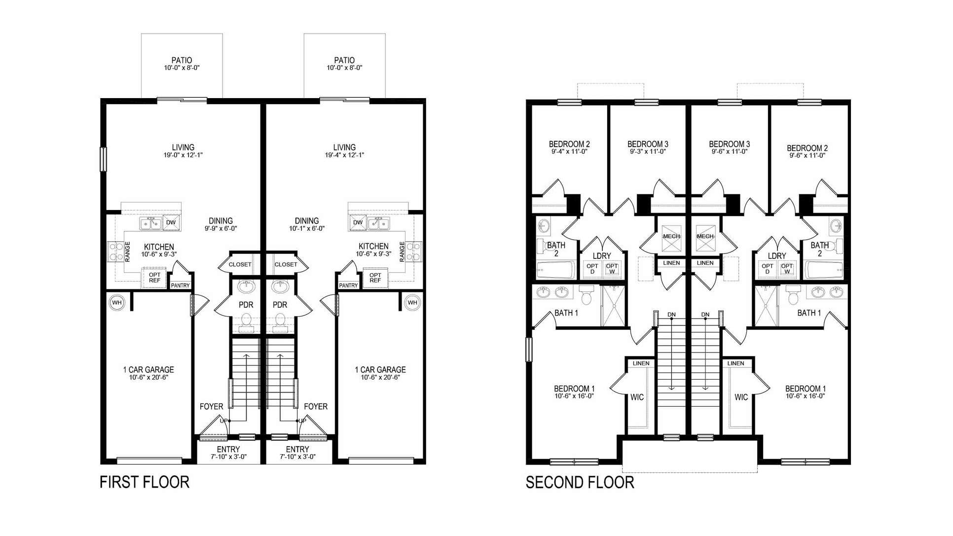
Plano de Planta 1/1
Detalles de la Casa
Destacados
- Multifamilia
- 1,463 Sq Ft
- 2 Pisos
- 2 Baños
- 1 Medio Baño
- 3 Cuartos
- 1 Garaje
431 Warm Heron Pl (Pearson A) Información de la casa
Personalización del Hogar
Centro de Planos
View floor plan details for this property.
- Planes de Distribución
- Imagenes de Exteriores
- Imagenes de Interiores
- Otros Medios
Mapa y Direcciones
421 Warm Heron pl
Ruskin, FL 33570
Comunidad y vecindario
Construyendo Ahora
Esta casa está actualmente en construcción en 431 Warm Heron Pl y pronto estará disponible para la mudanza en Ruskin Preserve Townhomes. ¡Póngase en contacto con D.R. Horton Basic hoy para fijar sus opciones!
Comunidad y vecindario
Instituciones educativas cerca de Ruskin Preserve Townhomes
- Hillsborough County School District
Las escuelas podrían variar. Póngase en contacto con el constructor para obtener más información.
Detalles del Constructor
D.R. Horton Basic
Hipoteca estimada: $1,872/mes . Ir a la calculadora de hipotecas El pago mensual estimado no incluye los montos de impuestos, primas de seguro y mejoras en el hogar. $0 pago inicial para Veteranos
Casas Cercanas en Ruskin, Florida
431 Warm Heron Pl (Pearson A) por D.R. Horton Basic
¡guardada en favoritos!
Para ver todas las casas que ha guardado, visite Mis Favoritos en su cuenta.
