- Casas Nuevas
- California
- Área de Chico
- Chico, CA
- Amber Lynn Estates
- Plan Plan 1678
Plan Plan 1678
Lista para Construir
886 Pico Place, Chico CA 95973
Casa por D.R. Horton
Reclame este listado para actualizar información, obtener acceso a herramientas exclusivas y más!
Última actualización hace 24 horas
- desde $464,990 ¿Qué es lo que quiere decir este rango de precios?
El rango de precios mostrado refleja el precio base de las casas construidas en esta comunidad
Usted debe seleccionar entre las muchos tipos diferentes de casas construidas por este constructor y personalizar su casa nueva con opciones y personalizaciones. - 4 HAB
- 2.5 BÑ
- 2 GR
- 1,678 SQ FT
Llama para conectar (888) 790-3488
Socios Valiosos

Floorplan 0 1/1
Detalles de la Casa
Destacados
- Casas Unifamiliares
- 1,678 Sq Ft
- 2 Pisos
- 2 Baños
- 1 Medio Baño
- 4 Cuartos
- 2 Garajes
Plan Plan 1678 Información
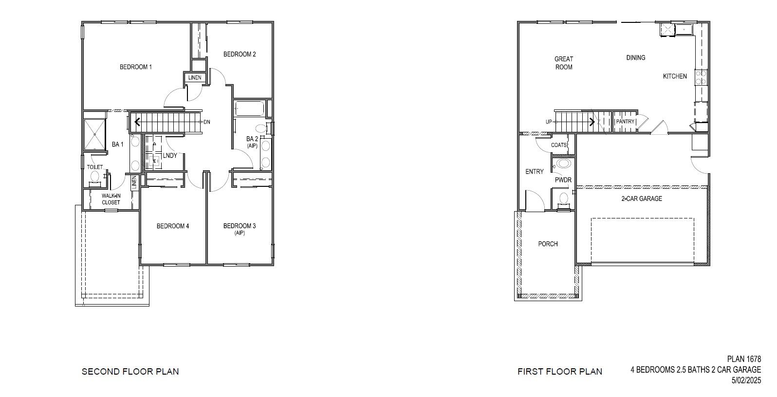
Explora el excepcional plano de dos pisos 1678 en Amber Lynn Estates, que ofrece una combinación perfecta de comodidad y estilo. Esta espaciosa casa cuenta con 4 habitaciones, 2,5 baños y un garaje para 2 autos, ideal para la vida familiar moderna. Entra para descubrir detalles bien pensados en todas partes, incluida una despensa de cocina designada para un almacenamiento y una comodidad óptimos. El dormitorio 1 cuenta con un amplio vestidor, que brinda un amplio espacio para los elementos esenciales del guardarropa. Disfruta de la comodidad de un lavadero en el segundo piso, que hace que las tareas del hogar sean muy sencillas. En el exterior, experimenta un atractivo exterior hermoso con tu elección de 3 estilos exteriores distintivos, lo que garantiza que tu casa se destaque en el vecindario. En la cocina, cocinar es un placer con la estufa a gas independiente de acero inoxidable Whirlpool de 30 y la combinación complementaria de microondas/campana Whirlpool de 30. Limpie sin esfuerzo con el lavavajillas empotrado Whirlpool de 24. Los baños están diseñados para el lujo con accesorios cromados, inodoros alargados y exquisitas encimeras E-Stone. Elija entre elegantes gabinetes estilo shaker en blanco o gris, agregando un toque de sofisticación a cada habitación. Abundan las comodidades modernas, incluidos interruptores Deako, tomas de carga USB en la cocina y tomas de corriente combinadas con luz nocturna GFCI en todos los baños, lo que mejora tanto la comodidad como la seguridad. Experimente la comodidad en toda la casa con alfombra Mohawk y pisos de tablones de vinilo de lujo MSI, complementados con un termostato programable Honeywell para un control eficiente de HVAC. Las características adicionales incluyen encimeras de cuarzo.
Personalización del Hogar
Centro de Planos
View floor plan details for this property.
- Planes de Distribución
- Imagenes de Exteriores
- Imagenes de Interiores
- Otros Medios
Mapa y Direcciones
886 Pico Place
Chico, CA 95973
Comunidad y vecindario
Bienvenido a Amber Lynn Estates, donde la comodidad se combina con la comodidad en el encanto histórico de Chico. Ubicada junto a N. Eaton Rd., esta vibrante comunidad ofrece 108 casas nuevas cuidadosamente diseñadas, cada una creada teniendo en cuenta su estilo de vida. Elija entre tres planos de planta que van desde aproximadamente 1547 a 1811 pies cuadrados, con hasta 4 habitaciones y 2,5 baños. Cada casa incluye un espacioso garaje para 2 autos y un lavadero exclusivo, complementado con un diseño de concepto abierto que integra a la perfección una gran sala, un comedor y una cocina gourmet. Disfrute de electrodomésticos de acero inoxidable de calidad superior, un amplio espacio de despensa y un área única de administración del hogar con gabinetes empotrados. Salga al patio trasero, perfecto para relajarse durante todo el año. La ubicación privilegiada de Amber Lynn en Chico ofrece una sensación de pueblo pequeño con fácil acceso a las principales comodidades, como supermercados, centros comerciales y opciones para cenar. Las escuelas cercanas desde K-8 hasta la escuela secundaria, parques como Bidwell Park e instalaciones médicas garantizan la comodidad para las familias. Además, el acceso rápido a las autopistas 32 y 99 simplifica el traslado. Explore lo mejor de la vida en Chico en Amber Lynn Estates, donde le esperan comodidades modernas y el encanto de una comunidad. Mas información acerca de Amber Lynn Estates
Lista para Construir
Construye la casa de tus sueños con el plan Plan 1678 seleccionando tus opciones favoritas. ¡Para la mejor selección, elija su lote en Amber Lynn Estates hoy!
Comunidad y vecindario
Instituciones educativas cerca de Amber Lynn Estates
- Chico Unified School District
Las escuelas podrían variar. Póngase en contacto con el constructor para obtener más información.
Detalles del Constructor
D.R. Horton
In 1978, D.R. Horton broke ground on our first home in Fort Worth, Texas. Since that day, the company has defined its success not by bricks and mortar, but by the satisfaction of the families that make our houses their homes. Our foundation is a single, guiding principle: a value-first dedication to the individual needs of each and every one of our nation’s homebuyers.
From first-time homebuyers to empty nesters, our family of brands provides a home for every stage in life. Our highly-trained, market experts are where you want to live, from New Jersey to Hawaii, providing unique, personalized services tailored to your individual needs. But the real value comes from the quality construction we put into every home, and the peace of mind that comes with a premium-backed warranty from America’s Number One Homebuilder.
We’ve come a long way, and while more people choose our family of brands over any other builder in the country, we never forget the most important thing of all – the families that choose us for their place to call home.
So continue to live out those dreams, America, and know we’ll be here for you every step of the way.
Hipoteca estimada: $3,023/mes . Ir a la calculadora de hipotecas El pago mensual estimado no incluye los montos de impuestos, primas de seguro y mejoras en el hogar. $0 pago inicial para Veteranos
Casas Cercanas en Chico, California
Plan Plan 1678 por D.R. Horton
¡guardada en favoritos!
Para ver todas las casas que ha guardado, visite Mis Favoritos en su cuenta.
