- Casas Nuevas
- California
- Área de Sacramento
- Roseville, CA
- Aviara at Amoruso Ranch
- Plan Plan 2311
Plan Plan 2311
Lista para Construir
316 Whistle Court, Roseville CA 95747
Casa por D.R. Horton
Reclame este listado para actualizar información, obtener acceso a herramientas exclusivas y más!
Última actualización hace 1 día
- desde $649,490 ¿Qué es lo que quiere decir este rango de precios?
El rango de precios mostrado refleja el precio base de las casas construidas en esta comunidad
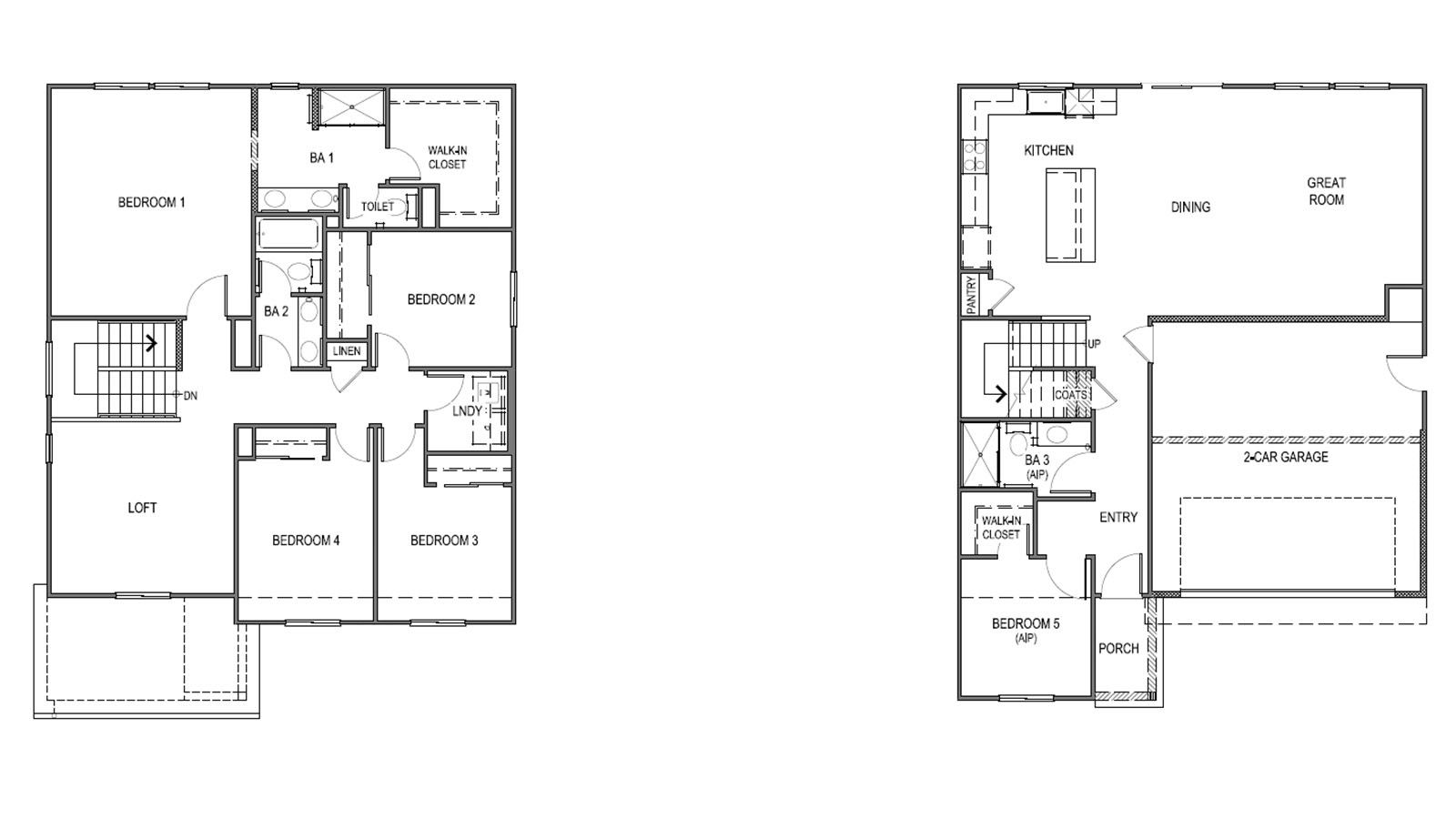
Usted debe seleccionar entre las muchos tipos diferentes de casas construidas por este constructor y personalizar su casa nueva con opciones y personalizaciones. - 5 HAB
- 3 BÑ
- 2 GR
- 2,311 SQ FT
Llama para conectar (888) 790-3488
Socios Valiosos

Floorplan 0 1/1
Detalles de la Casa
Destacados
- Casas Unifamiliares
- 2,311 Sq Ft
- 2 Pisos
- 3 Baños
- 5 Cuartos
- 2 Garajes
Plan Plan 2311 Información
Personalización del Hogar
Centro de Planos
View floor plan details for this property.
- Planes de Distribución
- Imagenes de Exteriores
- Imagenes de Interiores
- Otros Medios
Mapa y Direcciones
316 Whistle Court
Roseville, CA 95747
Comunidad y vecindario
Bienvenido a Aviara en Amoruso Ranch, una comunidad de casas nuevas ubicada en Roseville, California. En Aviara, encontrará viviendas unifamiliares nuevas diseñadas teniendo en cuenta sus necesidades. Esta comunidad cuenta con 151 terrenos. Elija entre tres planos de planta distintos, que van desde 1,825 a 2,617 pies cuadrados. Estas casas cuentan con hasta cinco dormitorios, 3 baños y un garaje para 2 autos. El plano de planta de concepto abierto conecta a la perfección la gran sala, el comedor y la cocina gourmet. Con comodidades modernas como: encimeras de cuarzo para cocina y baño, electrodomésticos de acero inoxidable y despensas espaciosas, todo incluido. Algunas características únicas también incluyen mucho espacio de almacenamiento con gabinetes empotrados, diseñados para vivir al aire libre con patios traseros completamente cercados, perfectos para relajarse o entretenerse. El dormitorio principal cuenta con baño privado y un amplio vestidor. Los residentes de Aviara también se benefician de ser parte del distrito escolar de la ciudad de Roseville. Disfrute de muchas ventajas locales, como el parque regional Gibson Ranch, el centro comercial Roseville Galleria, el recinto ferial del condado de Placer y el club de golf Woodcreek, así como múltiples instalaciones médicas. Con la comodidad adicional de estar ubicado cerca de la Interestatal 80 y la autopista 65 para un fácil viaje diario. Ya sea que esté considerando mudarse o simplemente explorar las posibilidades, Aviara en Amoruso Ranch en Roseville lo invita a descubrir un lugar donde convergen la comodidad y la comunidad. Ven a recorrer tu nuevo hogar hoy. Mas información acerca de Aviara at Amoruso Ranch
Lista para Construir
Construye la casa de tus sueños con el plan Plan 2311 seleccionando tus opciones favoritas. ¡Para la mejor selección, elija su lote en Aviara at Amoruso Ranch hoy!
Comunidad y vecindario
Instituciones educativas cerca de Aviara at Amoruso Ranch
- Roseville City Elementary School District
- Roseville Joint Union High School District
Las escuelas podrían variar. Póngase en contacto con el constructor para obtener más información.
Detalles del Constructor
D.R. Horton
In 1978, D.R. Horton broke ground on our first home in Fort Worth, Texas. Since that day, the company has defined its success not by bricks and mortar, but by the satisfaction of the families that make our houses their homes. Our foundation is a single, guiding principle: a value-first dedication to the individual needs of each and every one of our nation’s homebuyers.
From first-time homebuyers to empty nesters, our family of brands provides a home for every stage in life. Our highly-trained, market experts are where you want to live, from New Jersey to Hawaii, providing unique, personalized services tailored to your individual needs. But the real value comes from the quality construction we put into every home, and the peace of mind that comes with a premium-backed warranty from America’s Number One Homebuilder.
We’ve come a long way, and while more people choose our family of brands over any other builder in the country, we never forget the most important thing of all – the families that choose us for their place to call home.
So continue to live out those dreams, America, and know we’ll be here for you every step of the way.
Hipoteca estimada: $4,223/mes . Ir a la calculadora de hipotecas El pago mensual estimado no incluye los montos de impuestos, primas de seguro y mejoras en el hogar. $0 pago inicial para Veteranos
Casas Cercanas en Roseville, California
Plan Plan 2311 por D.R. Horton
¡guardada en favoritos!
Para ver todas las casas que ha guardado, visite Mis Favoritos en su cuenta.
