- Casas Nuevas
- California
- Área de Sacramento
- Yuba City, CA
- Harter Estates
- Plan Plan 2311
Plan Plan 2311
Lista para Construir
1214 Jefferson Avenue, Yuba City CA 95993
Casa por D.R. Horton
Reclame este listado para actualizar información, obtener acceso a herramientas exclusivas y más!
Última actualización hace 1 día
- desde  $553,990   ¿Qué es lo que quiere decir este rango de precios?
 El rango de precios mostrado refleja el precio base de las casas construidas en esta comunidad
 Usted debe seleccionar entre las muchos tipos diferentes de casas construidas por este constructor y personalizar su casa nueva con opciones y personalizaciones.
- 5 HAB
- 3 BÑ
- 2 GR
- 2,311 SQ FT
Llama para conectar (888) 790-3488
Socios Valiosos

Floorplan 0 1/1
Detalles de la Casa
Destacados
- Casas Unifamiliares
- 2,311 Sq Ft
- 2 Pisos
- 3 Baños
- 5 Cuartos
- 2 Garajes
Plan Plan 2311 Información
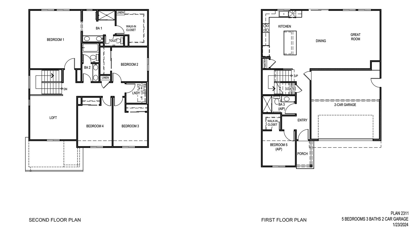
Bienvenido al Plan 2311, una lujosa casa de dos pisos diseñada para quienes buscan amplitud, comodidad y comodidades modernas. Con una superficie de 215 m², esta impresionante residencia cuenta con cinco habitaciones, tres baños y un garaje para dos autos, ideal para quienes aman los espacios grandes o les encanta recibir invitados. La cocina está equipada con electrodomésticos de acero inoxidable Whirlpool de primera línea, que incluyen una estufa eléctrica independiente de 30, una combinación de microondas/campana extractora y un lavavajillas incorporado, todo ello complementado con elegantes encimeras de granito que se extienden a la perfección hacia cada baño para lograr una apariencia cohesiva. Disfrute de la relajación con la mampara de ducha con marco cromado del baño 1 con borde de fibra de vidrio, mientras que el baño 2 ofrece una cómoda combinación de bañera/ducha de fibra de vidrio con barra de ducha. Cada baño cuenta con inodoros alargados y elegantes accesorios cromados, que añaden un toque de sofisticación. La cocina exhibe gabinetes de estilo Shaker con revestimiento completo en blanco atemporal, completos con elegantes herrajes y encimeras de 30, que brindan un amplio espacio de almacenamiento para los elementos esenciales culinarios. Disfrute de la comodidad de los interruptores Deako, las tomas de carga USB ubicadas estratégicamente en la cocina y las tomas combinadas de luz nocturna GFCI en todos los baños para mayor seguridad. Las características de eficiencia energética incluyen luces LED de montaje en superficie en todos los techos y precableado para ventiladores de techo en la gran sala y en todos los dormitorios. Salga a relajarse en el porche cubierto o retírese al loft, que ofrece espacio adicional para hobbies o relajación. Características adicionales
Personalización del Hogar
Centro de Planos
View floor plan details for this property.
- Planes de Distribución
- Imagenes de Exteriores
- Imagenes de Interiores
- Otros Medios
Mapa y Direcciones
1214 Jefferson Avenue 
 Yuba City, CA 95993
Comunidad y vecindario
Descubra una nueva casa diseñada meticulosamente pensando en usted en Harter Estates en Yuba City, California. Ubicada en la encantadora Yuba City, esta emocionante comunidad cuenta con 150 lotes. Estas casas varían de aproximadamente 1501 a 2311 pies cuadrados, con opciones de diseños de una o dos plantas. Elija entre cuatro planos de planta diferentes, que cuentan con hasta 5 habitaciones, 3 baños, un amplio garaje para 2 autos y un baño separado. El plano de planta abierto conecta a la perfección la gran sala y el comedor, lo que conduce a una cocina gourmet equipada con electrodomésticos de acero inoxidable, una isla independiente, una amplia despensa para almacenamiento adicional y encimeras de granito que se extienden desde la cocina hasta los baños. Los gabinetes empotrados agregan elegancia, mientras que el generoso patio trasero invita al disfrute durante todo el año. La suite principal incluye un baño privado y un amplio vestidor para mayor lujo y comodidad. Los residentes de Harter Estates también se benefician de ser parte del Distrito Escolar Unificado de Yuba City Yuba City ofrece una combinación de encanto y practicidad con sus diversas comodidades y su entorno pintoresco. Conocida por su comunidad acogedora y su atmósfera de pueblo pequeño, cuenta con una vibrante escena cultural y una variedad de oportunidades recreativas, incluida la proximidad al pintoresco río Sacramento y la exuberante belleza natural de las colinas circundantes. Los monumentos históricos y anuales de Yuba City, como el Festival del Girasol, celebran su rico patrimonio. La ciudad también se beneficia de un clima favorable, lo que hace que las actividades al aire libre sean agradables durante todo el año. Su conveniente ubicación, con fácil acceso a las principales autopistas y ciudades, la convierte en un lugar atractivo para vivir y trabajar. No pierda la oportunidad de ser parte de esta nueva comunidad donde cada detalle está diseñado pensando en usted, en Harter Estates en Yuba City. Mas información acerca de Harter Estates
Lista para Construir
Construye la casa de tus sueños con el plan Plan 2311 seleccionando tus opciones favoritas. ¡Para la mejor selección, elija su lote en Harter Estates hoy!
Comunidad y vecindario
Instituciones educativas cerca de Harter Estates
- Yuba City Unified School District
Las escuelas podrían variar. Póngase en contacto con el constructor para obtener más información.
Detalles del Constructor
D.R. Horton
In 1978, D.R. Horton broke ground on our first home in Fort Worth, Texas. Since that day, the company has defined its success not by bricks and mortar, but by the satisfaction of the families that make our houses their homes. Our foundation is a single, guiding principle: a value-first dedication to the individual needs of each and every one of our nation’s homebuyers. 
 From first-time homebuyers to empty nesters, our family of brands provides a home for every stage in life. Our highly-trained, market experts are where you want to live, from New Jersey to Hawaii, providing unique, personalized services tailored to your individual needs. But the real value comes from the quality construction we put into every home, and the peace of mind that comes with a premium-backed warranty from America’s Number One Homebuilder. 
 We’ve come a long way, and while more people choose our family of brands over any other builder in the country, we never forget the most important thing of all – the families that choose us for their place to call home. 
 So continue to live out those dreams, America, and know we’ll be here for you every step of the way. 
Hipoteca estimada: $3,602/mes . Ir a la calculadora de hipotecas El pago mensual estimado no incluye los montos de impuestos, primas de seguro y mejoras en el hogar. $0 pago inicial para Veteranos
Casas Cercanas en Yuba City, California
Plan Plan 2311 por D.R. Horton
¡guardada en favoritos!
Para ver todas las casas que ha guardado, visite Mis Favoritos en su cuenta.
