- Casas Nuevas
- Alabama
- Área de Mobile
- Summerdale, AL
- Dogwood Estates
- 21163 ROUGHLEAF DRIVE (SULLIVAN)
21163 ROUGHLEAF DRIVE (SULLIVAN)
Construyendo Ahora
Summerdale, AL 36580
Casa por D.R. Horton
Reclame este listado para actualizar información, obtener acceso a herramientas exclusivas y más!
Última actualización hace 22 horas
- desde $278,041 ¿Qué es lo que quiere decir este rango de precios?
El rango de precios mostrado refleja el precio base de las casas construidas en esta comunidad
Usted debe seleccionar entre las muchos tipos diferentes de casas construidas por este constructor y personalizar su casa nueva con opciones y personalizaciones. - 4 HAB
- 2 BÑ
- 1 GR
- 1,433 SQ FT
Llama para conectar (888) 790-3488
Socios Valiosos

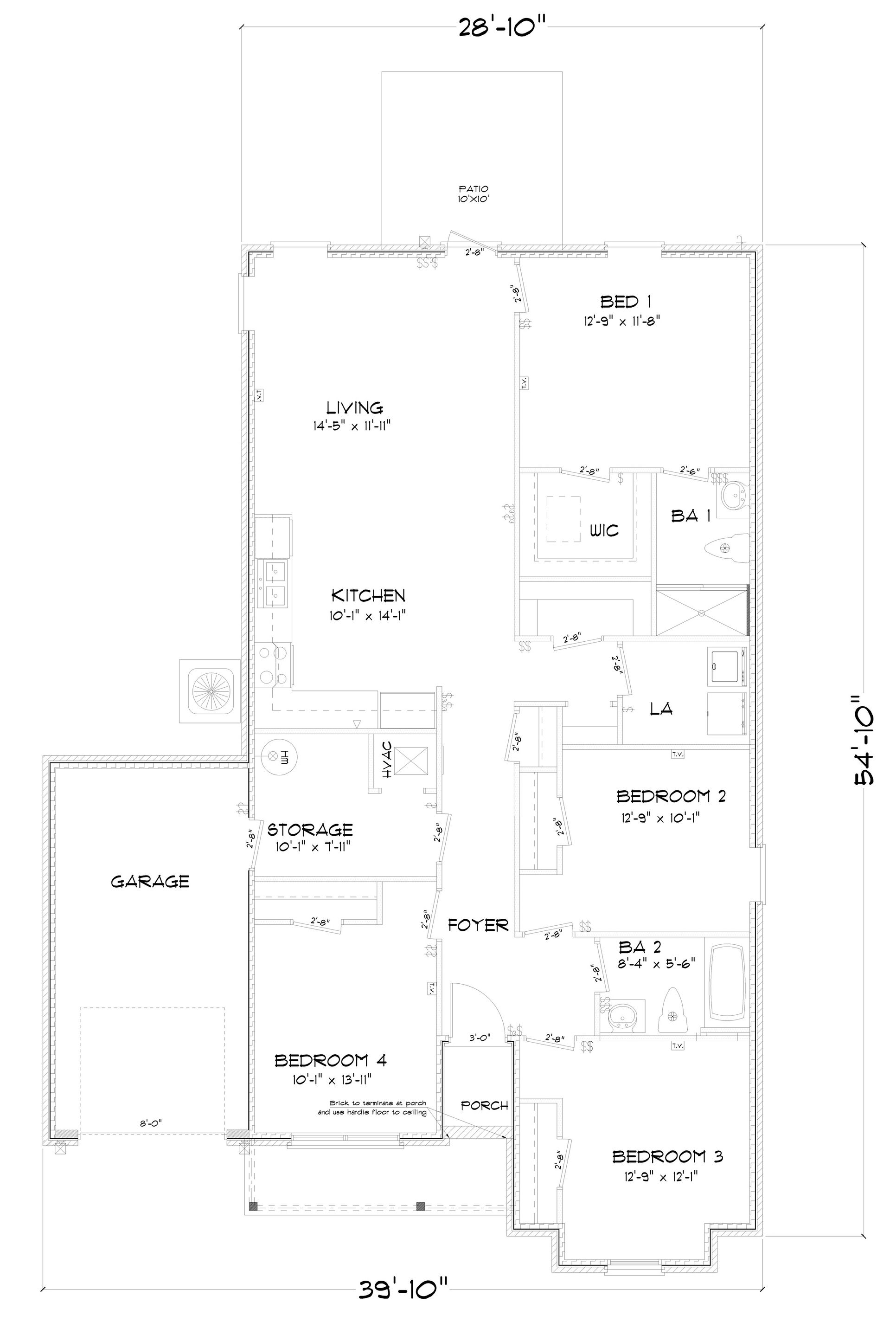
Plano de Planta 1/1
Detalles de la Casa
Destacados
- Casas Unifamiliares
- 1,433 Sq Ft
- 1 Piso
- 2 Baños
- 4 Cuartos
- 1 Garaje
21163 ROUGHLEAF DRIVE (SULLIVAN) Información de la casa
Personalización del Hogar
Centro de Planos
View floor plan details for this property.
- Planes de Distribución
- Imagenes de Exteriores
- Imagenes de Interiores
- Otros Medios
Mapa y Direcciones
21105 Roughleaf Drive
Summerdale, AL 36580
Comunidad y vecindario
Bienvenido a Dogwood Estates, una hermosa comunidad de casas nuevas ubicada en la encantadora ciudad de Summerdale, Alabama. Este vecindario cuidadosamente diseñado ofrece una selección de impresionantes casas de un piso, cada una diseñada para brindar el equilibrio perfecto entre comodidad, conveniencia y estilo. Elija entre una variedad de planos de planta que cuentan con 3 a 4 habitaciones espaciosas, 2 baños completos y un garaje para 1 automóvil, ideal para quienes buscan una casa que se adapte a la vida moderna y, al mismo tiempo, ofrezca un refugio tranquilo. Ingrese a su nuevo hogar en Dogwood Estates y quedará inmediatamente impresionado por los acabados de alta calidad y la atención al detalle en todas partes. Cada casa está equipada con elegantes encimeras de granito tanto en la cocina como en los baños, lo que proporciona una superficie sofisticada y duradera. Las cocinas están equipadas con electrodomésticos de acero inoxidable de primera línea que hacen que cocinar y entretener sea un placer. Además, cada casa viene completa con tecnología de hogar inteligente integrada, lo que le brinda el máximo control y comodidad a su alcance. Dogwood Estates está convenientemente ubicado justo al lado de County Road 36, al este de Baldwin Beach Express, y ofrece lo mejor de ambos mundos: un ambiente tranquilo de pueblo pequeño con acceso rápido a todo lo esencial. Desde tiendas y restaurantes locales hasta escuelas cercanas y opciones recreativas, todo lo que necesita está a su alcance. Para aquellos que buscan un día en la playa, las famosas costas de arena blanca de Alabama están a solo un corto trayecto en automóvil, lo que ofrece innumerables oportunidades para relajarse, tomar el sol o disfrutar de una variedad de deportes acuáticos. Ya sea que esté comenzando una familia, reduciendo el tamaño de su hogar o buscando una casa de vacaciones tranquila, Dogwood Estates ofrece una variedad de planos de planta cuidadosamente diseñados para satisfacer sus necesidades. Con su ubicación ideal y acabados de alta calidad, esta comunidad es perfecta para cualquiera que busque un estilo de vida relajado y tranquilo sin sacrificar la comodidad. No pierda la oportunidad de hacer de Dogwood Estates su nuevo hogar. Programe una visita hoy y descubra lo fácil que es Mas información acerca de Dogwood Estates
Construyendo Ahora
Esta casa está actualmente en construcción en 21163 ROUGHLEAF DRIVE y pronto estará disponible para la mudanza en Dogwood Estates. ¡Póngase en contacto con D.R. Horton hoy para fijar sus opciones!
Comunidad y vecindario
Instituciones educativas cerca de Dogwood Estates
- Baldwin County Public Schools
Las escuelas podrían variar. Póngase en contacto con el constructor para obtener más información.
Comodidades del vecindario
Tiendas de Comestibles
- Walmart Supercenter
3.58 millas de distancia
21141 State Highway 59
- Greer's Cashsaver
4.74 millas de distancia
21951 AL-59
- Foley Fish Co Inc
7.02 millas de distancia
321 S McKenzie St
- ALDI
7.33 millas de distancia
130 E Pride Blvd
- Elberta Grocery
7.33 millas de distancia
25250 US Highway 98
- Walmart Supercenter
Tiendas Especializadas
- Walmart Bakery
3.58 millas de distancia
21141 State Highway 59
- Earth Grain Depot
4.74 millas de distancia
23105 Grissom Dr
- Sweet Fantasy
6.75 millas de distancia
14809 AL-59
- Path to Wellness
6.84 millas de distancia
240 W Laurel Ave
- Smallcakes Cupcakery
8.38 millas de distancia
2163 S McKenzie St
- Walmart Bakery
Restaurantes
- Dan's Diner
2.60 millas de distancia
105 NW 1st St
- Cajun Boudin Connection
3.03 millas de distancia
103 State Highway 59 S
- Krispy Krunchy Chicken
3.26 millas de distancia
1033 State Highway 59 S
- Waffle House
3.31 millas de distancia
1024 State Highway 59 S
- Zaxby's Chicken Fingers & Buffalo Wings
3.58 millas de distancia
21141 State Highway 59
- Dan's Diner
Cafés
- Lickin Good Donuts
4.36 millas de distancia
22379 State Highway 59 S
- Brodie's Cream & Bean
5.79 millas de distancia
16320 Silverhill Ave
- Foley Coffee Shop
6.71 millas de distancia
213 N McKenzie St
- 7 Brew Coffee
6.75 millas de distancia
3231 S McKenzie St
- Lickin Good Donuts
Compras
- Walmart Supercenter
3.58 millas de distancia
21141 State Highway 59
- The Hottest Fashions
6.01 millas de distancia
1103 N McKenzie St
- Anthony's Bridal & Tuxedo Shop
6.04 millas de distancia
1021 N McKenzie St
- Roses & Lace Weddings
6.90 millas de distancia
107 W Orange Ave
- Morning Glory Creations Elbrt
7.23 millas de distancia
25054 State St
- Walmart Supercenter
Bares & Vida Nocturna
- Billy Jacks Grill & Bar
4.74 millas de distancia
22951 State Route 59
- Alley Cat Alley
5.96 millas de distancia
14835 AL-104
- Porch in Silverhill
5.96 millas de distancia
14835 State Highway 104
- Local & Company Food & Drink
6.27 millas de distancia
812 N McKenzie St
- Scuttlebutt Pub
6.62 millas de distancia
319A N McKenzie St
- Billy Jacks Grill & Bar
Tenga en cuenta que esta información puede variar. Si encuentra algo inexacto, por favor contáctenos
Detalles del Constructor
D.R. Horton
In 1978, D.R. Horton broke ground on our first home in Fort Worth, Texas. Since that day, the company has defined its success not by bricks and mortar, but by the satisfaction of the families that make our houses their homes. Our foundation is a single, guiding principle: a value-first dedication to the individual needs of each and every one of our nation’s homebuyers.
From first-time homebuyers to empty nesters, our family of brands provides a home for every stage in life. Our highly-trained, market experts are where you want to live, from New Jersey to Hawaii, providing unique, personalized services tailored to your individual needs. But the real value comes from the quality construction we put into every home, and the peace of mind that comes with a premium-backed warranty from America’s Number One Homebuilder.
We’ve come a long way, and while more people choose our family of brands over any other builder in the country, we never forget the most important thing of all – the families that choose us for their place to call home.
So continue to live out those dreams, America, and know we’ll be here for you every step of the way.
Hipoteca estimada: $1,808/mes . Ir a la calculadora de hipotecas El pago mensual estimado no incluye los montos de impuestos, primas de seguro y mejoras en el hogar. $0 pago inicial para Veteranos
Casas Cercanas en Summerdale, Alabama
21163 ROUGHLEAF DRIVE (SULLIVAN) por D.R. Horton
¡guardada en favoritos!
Para ver todas las casas que ha guardado, visite Mis Favoritos en su cuenta.
