- Casas Nuevas
- Alabama
- Área de Mobile
- Mobile, AL
- Valor Ridge
- Plan The Lakeside
Plan The Lakeside
Lista para Construir
7867 Valor Ridge Way North, Mobile AL 36619
Casa por D.R. Horton
en Valor Ridge
Reclame este listado para actualizar información, obtener acceso a herramientas exclusivas y más!
Última actualización hace 1 día
- desde $298,900 ¿Qué es lo que quiere decir este rango de precios?
El rango de precios mostrado refleja el precio base de las casas construidas en esta comunidad
Usted debe seleccionar entre las muchos tipos diferentes de casas construidas por este constructor y personalizar su casa nueva con opciones y personalizaciones. - 5 HAB
- 3 BÑ
- 2 GR
- 2,100 SQ FT
Llama para conectar (888) 790-3488
Socios Valiosos

Floorplan 2 1/1
Detalles de la Casa
Destacados
- Casas Unifamiliares
- 3,386 Sq Ft
- 2 Pisos
- 3 Baños
- 5 Cuartos
- 2 Garajes
Plan The Lakeside Información
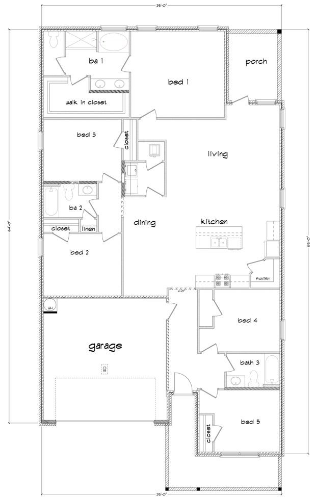
The Lakeside floor plan features five bedrooms and three bathrooms in over 2,000 square feet of space. From the front door you enter the foyer. Two bedrooms and a full bathroom are to one side. The entrance from the garage is opposite. As you continue to enter, the living space opens to the kitchen and dining areas. To one side are two more bedrooms, a full bathroom, and the laundry room. The main living space is open with multiple windows. The primary bedroom is in the rear of the home with a large walk-in-closet and primary bathroom. The porch is accessed through the living room on the back side of the home. Pictures are of a similar home and not necessarily of the subject property, including interior and exterior colors, options, and finishes. Pictures are representational only. Furnishings, decorative items, and TVs are not included in the home purchase. This home is a ''Smart Home'', a standard package that includes: a Z-Wave programmable ther¬mostat manufactured by Honeywell; a Homeconnect TM door lock manufactured by Kwikset; Deako Smart Switches; an Qolsys, Inc. touchscreen Smart Home control device; an automation platform from Alarm.com; an Alarm.com video doorbell; an Amazon Echo Pop. This home is being built to Gold FORTIFIED HomeTM certification (See Sales Representative for details.)
Personalización del Hogar
Centro de Planos
View floor plan details for this property.
- Planes de Distribución
- Imagenes de Exteriores
- Imagenes de Interiores
- Otros Medios
Mapa y Direcciones
7867 Valor Ridge Way North
Mobile, AL 36619
Comunidad y vecindario
Presentamos Valor Ridge, nuestra nueva comunidad de casas en Mobile, Alabama. Esta encantadora comunidad ofrece actualmente varios planos de planta de nuestras series Express y Tradition. Estas casas de un solo piso tienen entre 3 y 5 dormitorios, hasta 3 baños, garajes para 2 autos y entre 1,650 y 2,495 pies cuadrados de vida cómoda. Cuando ingrese a estas casas, encontrará el lujo moderno combinado con una vida comunitaria serena. La cocina está diseñada con hermosos gabinetes estilo shaker, encimeras de granito y electrodomésticos de acero inoxidable que ofrecen un diseño ideal para el chef hogareño. El diseño abierto de los espacios habitables permite la inclusión y es perfecto para pasar tiempo en familia. El paquete de iluminación LED añade un agradable toque moderno y crea un ambiente cálido. Las casas tendrán un exterior encantador y duradero, combinando un exterior principalmente de ladrillo y un revestimiento según el plano. Es una combinación que puede mejorar el atractivo exterior y garantizar que las casas resistan el paso del tiempo. Hemos equipado las casas en Valor Ridge con tecnología de hogar inteligente que agrega un gran toque moderno. Permite a los residentes controlar y gestionar cómodamente diversos aspectos de sus hogares, mejorando el confort, la conveniencia y la tranquilidad. La comunidad de Valor Ridge contará con una entrada acogedora desde Schillinger Road. Esta comunidad está cerca de la I-10 y Airport Road. Hay muchos restaurantes y tiendas de comestibles a poca distancia en coche. Tenemos un hermoso modelo de nuestro plano de planta de Cairn abierto para su visualización. ¡Llame a un especialista en viviendas nuevas hoy y programe su recorrido! Mas información acerca de Valor Ridge
Lista para Construir
Construye la casa de tus sueños con el plan The Lakeside seleccionando tus opciones favoritas. ¡Para la mejor selección, elija su lote en Valor Ridge hoy!
Comunidad y vecindario
Instituciones educativas cerca de Valor Ridge
- Mobile County Schools
Las escuelas podrían variar. Póngase en contacto con el constructor para obtener más información.
Comodidades del vecindario
Tiendas de Comestibles
- Walmart Neighborhood Market
2.67 millas de distancia
7320 Theodore Dawes Rd
- Rouses Market
2.73 millas de distancia
7361 Theodore Dawes Rd
- Walmart Supercenter
2.92 millas de distancia
2500 Dawes Rd
- Mobile Grocery Delivery
3.23 millas de distancia
2090 Schillinger Rd S
- Winn-Dixie
3.34 millas de distancia
5440 Highway 90 W
- Walmart Neighborhood Market
Tiendas Especializadas
- Walmart Bakery
2.67 millas de distancia
7320 Theodore Dawes Rd
- Walmart Bakery
2.92 millas de distancia
2500 Dawes Rd
- Flourgirls Bakery
2.98 millas de distancia
2949 Cloverland Ct
- Sally's Piece A Cake
3.27 millas de distancia
5638 Three Notch Rd
- Walmart Bakery
3.53 millas de distancia
6350 Cottage Hill Rd
- Walmart Bakery
Restaurantes
- Hunt Brothers Pizza
2.09 millas de distancia
3455 Dawes Rd
- China One
2.60 millas de distancia
2502 Schillinger Rd S
- Foosackly's
2.60 millas de distancia
2502 Schillinger Rd S
- Mediterranean Sandwich Co. Wemo
2.60 millas de distancia
2502 Schillinger Rd S
- NPC International Inc
2.60 millas de distancia
2502 Schillinger Rd S
- Hunt Brothers Pizza
Cafés
- Starbucks
3.34 millas de distancia
5159 Rangeline Service Rd N
- PJ's Coffee
3.72 millas de distancia
5000 Rangeline Crossing Dr
- Tropical Smoothie Cafe
3.72 millas de distancia
5000 Rangeline Crossing Dr
- Starbucks
4.68 millas de distancia
1363 Hillcrest Rd
- Special Touch Coffee & Prayer Room
4.93 millas de distancia
880 Dawes Rd
- Starbucks
Compras
- Down South Mobile
2.60 millas de distancia
2502 Schillinger Rd S
- Zeal Boutique
2.60 millas de distancia
2502 Schillinger Rd S
- Trinkits & Treasures LLC
2.80 millas de distancia
5956 Three Notch Rd
- N T Lingerie
2.87 millas de distancia
6095 Old Pascagoula Rd
- Walmart Supercenter
2.92 millas de distancia
2500 Dawes Rd
- Down South Mobile
Bares & Vida Nocturna
- PS Taco Company-West Mobile
2.68 millas de distancia
7899 Cottage Hill Rd
- Shari Lee's Lounge
2.92 millas de distancia
6291 Spanish Trail Ct
- M R Lounge
2.95 millas de distancia
7101 Theodore Dawes Rd
- Fonny's Lounge
3.28 millas de distancia
5566 Andrew Rd
- Hooters
3.40 millas de distancia
5470 Inn Rd
- PS Taco Company-West Mobile
Tenga en cuenta que esta información puede variar. Si encuentra algo inexacto, por favor contáctenos
Detalles del Constructor
D.R. Horton
In 1978, D.R. Horton broke ground on our first home in Fort Worth, Texas. Since that day, the company has defined its success not by bricks and mortar, but by the satisfaction of the families that make our houses their homes. Our foundation is a single, guiding principle: a value-first dedication to the individual needs of each and every one of our nation’s homebuyers.
From first-time homebuyers to empty nesters, our family of brands provides a home for every stage in life. Our highly-trained, market experts are where you want to live, from New Jersey to Hawaii, providing unique, personalized services tailored to your individual needs. But the real value comes from the quality construction we put into every home, and the peace of mind that comes with a premium-backed warranty from America’s Number One Homebuilder.
We’ve come a long way, and while more people choose our family of brands over any other builder in the country, we never forget the most important thing of all – the families that choose us for their place to call home.
So continue to live out those dreams, America, and know we’ll be here for you every step of the way.
Hipoteca estimada: $1,943/mes . Ir a la calculadora de hipotecas El pago mensual estimado no incluye los montos de impuestos, primas de seguro y mejoras en el hogar. $0 pago inicial para Veteranos
Casas Cercanas en Mobile, Alabama
Plan The Lakeside por D.R. Horton
¡guardada en favoritos!
Para ver todas las casas que ha guardado, visite Mis Favoritos en su cuenta.
