- Casas Nuevas
- Georgia
- Área de Atlanta
- Newnan, GA
- Genesee
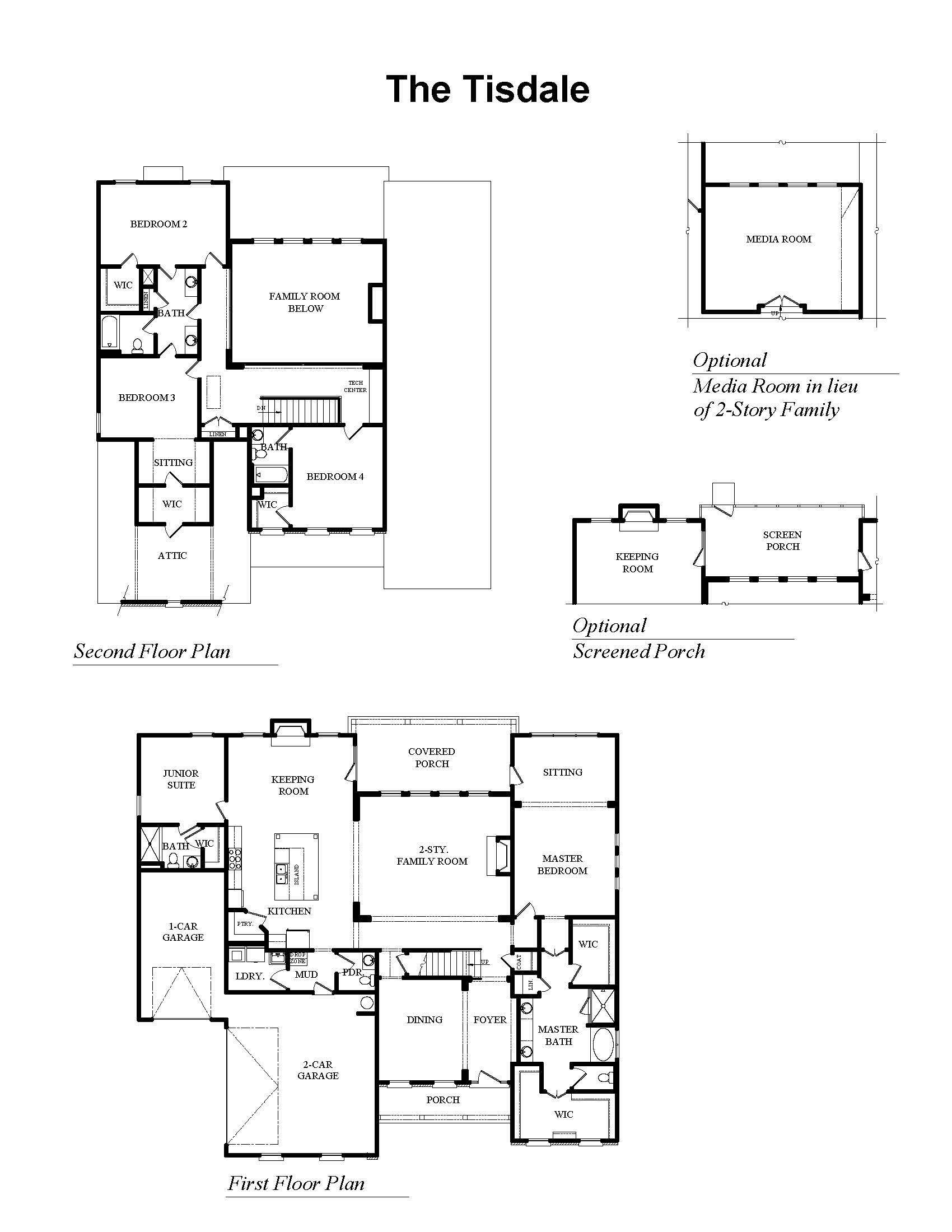
- Plan TISDALE
Reclame este listado para actualizar información, obtener acceso a herramientas exclusivas y más!
Última actualización hace 23 horas
- desde $622,990 ¿Qué es lo que quiere decir este rango de precios?
El rango de precios mostrado refleja el precio base de las casas construidas en esta comunidad
Usted debe seleccionar entre las muchos tipos diferentes de casas construidas por este constructor y personalizar su casa nueva con opciones y personalizaciones. - 5 HAB
- 4.5 BÑ
- 3 GR
- 3,448 SQ FT
Llama para conectar (888) 355-8096
Socios Valiosos

Floorplan 0 1/1
Detalles de la Casa
Destacados
- Casas Unifamiliares
- 3,448 Sq Ft
- 2 Pisos
- 4 Baños
- 1 Medio Baño
- 5 Cuartos
- 3 Garajes
Plan TISDALE Información
La nueva comunidad residencial de DR Horton, Genesee, cerrará pronto en Newnan, Georgia, ubicada en el condado de Coweta. Esta comunidad cuenta con algunas de nuestras casas más lujosas; seguramente encontrará su futuro hogar aquí. Hay muchas comodidades comunitarias, como un área de juegos, una piscina olímpica junior, una cabaña y un área de pícnic para aprovechar. Genesee está junto a la escuela primaria Brooks, lo que la hace segura y transitable para niños en edad escolar. Hay muchas tiendas y restaurantes en el cercano y vibrante centro histórico de Newnan, junto con muchos centros de recreación al aire libre, parques y jardines. El Aeropuerto Internacional Hartsfield-Jackson de Atlanta está a un corto viaje en automóvil por la I-85 para aquellos que viajan a menudo, ya sea por trabajo o por diversión.
Personalización del Hogar
Centro de Planos
View floor plan details for this property.
- Planes de Distribución
- Imagenes de Exteriores
- Imagenes de Interiores
- Otros Medios
Mapa y Direcciones
42 Hodges Street
Newnan, GA 30263
Comunidad y vecindario
La nueva comunidad residencial de DR Horton, Genesee, cerrará pronto en Newnan, Georgia, ubicada en el condado de Coweta. Esta comunidad cuenta con algunas de nuestras casas más lujosas; seguramente encontrará su futuro hogar aquí. Hay muchas comodidades comunitarias, como un área de juegos, una piscina olímpica junior, una cabaña y un área de pícnic para aprovechar. Genesee está junto a la escuela primaria Brooks, lo que la hace segura y transitable para niños en edad escolar. Hay muchas tiendas y restaurantes en el cercano y vibrante centro histórico de Newnan, junto con muchos centros de recreación al aire libre, parques y jardines. El Aeropuerto Internacional Hartsfield-Jackson de Atlanta está a un corto viaje en automóvil por la I-85 para aquellos que viajan a menudo, ya sea por trabajo o por diversión. Mas información acerca de Genesee
Lista para Construir
Construye la casa de tus sueños con el plan TISDALE seleccionando tus opciones favoritas. ¡Para la mejor selección, elija su lote en Genesee hoy!
Comunidad y vecindario
Instituciones educativas cerca de Genesee
- Coweta County Schools
Las escuelas podrían variar. Póngase en contacto con el constructor para obtener más información.
Comodidades del vecindario
Tiendas de Comestibles
- Bosch Experience Center at SRNB
2.86 millas de distancia
10640 Serenbe Ln
- Publix
5.65 millas de distancia
4000 Highway 29 N
- Smith John R Grocery Co
5.69 millas de distancia
6400 Campbellton Redwine Rd
- Piggly Wiggly
6.43 millas de distancia
506 Center St
- Little Giant Farmer's Market
6.84 millas de distancia
2005 Highway 16 W
- Bosch Experience Center at SRNB
Tiendas Especializadas
- Einstein Bros Bagels
7.46 millas de distancia
311 Bullsboro Dr
- Smallcakes Cupcakery
7.49 millas de distancia
113 Newnan Xing Byp
- GNC
7.61 millas de distancia
963 Highway 34 E
- Walmart Bakery
7.65 millas de distancia
1025 Highway 34 E
- Einstein Bros Bagels
Restaurantes
- Halsa
2.28 millas de distancia
11090 Serenbe Ln
- Bamboo Juices
2.46 millas de distancia
11150 Serenbe Ln
- Hunt Brothers Pizza
2.49 millas de distancia
3921 Roscoe Rd
- The Farmhouse
2.69 millas de distancia
10950 Hutcheson Ferry Rd
- Blue Eyed Daisy Bakeshop
2.91 millas de distancia
9065 Selborne Ln
- Halsa
Cafés
- Starbucks
7.36 millas de distancia
733 Highway 34 E
- Dunkin'
7.37 millas de distancia
1010 Highway 34 E
- Kool Bean Coffee
7.38 millas de distancia
300 Bullsboro Dr
- Starbucks
7.39 millas de distancia
1200 Highway 34 E
- Dunkin'
7.42 millas de distancia
250 Bullsboro Dr
- Starbucks
Compras
- Jasrael Desings Inc
5.76 millas de distancia
555 Carlton Pointe Dr
- Family Dollar
6.84 millas de distancia
2005 Highway 16 W
- Family Dollar
7.11 millas de distancia
9145B Roosevelt Hwy
- Academy Sports + Outdoors
7.19 millas de distancia
1096 Highway 34 E
- Ross Dress For Less
7.27 millas de distancia
1140 Highway 34 E
- Jasrael Desings Inc
Bares & Vida Nocturna
- Danthony's Grill & Bar
6.11 millas de distancia
89 Herring Rd
- Jekyll & Hyde's
6.89 millas de distancia
10 The Boulevard
- Corner Tavern
7.18 millas de distancia
35 Priscilla Way
- LongHorn Steakhouse
7.39 millas de distancia
1112 Highway 34 E
- Buffalo Wild Wings
7.42 millas de distancia
355 Bullsboro Dr
- Danthony's Grill & Bar
Tenga en cuenta que esta información puede variar. Si encuentra algo inexacto, por favor contáctenos
Detalles del Constructor
D.R. Horton
In 1978, D.R. Horton broke ground on our first home in Fort Worth, Texas. Since that day, the company has defined its success not by bricks and mortar, but by the satisfaction of the families that make our houses their homes. Our foundation is a single, guiding principle: a value-first dedication to the individual needs of each and every one of our nation’s homebuyers.
From first-time homebuyers to empty nesters, our family of brands provides a home for every stage in life. Our highly-trained, market experts are where you want to live, from New Jersey to Hawaii, providing unique, personalized services tailored to your individual needs. But the real value comes from the quality construction we put into every home, and the peace of mind that comes with a premium-backed warranty from America’s Number One Homebuilder.
We’ve come a long way, and while more people choose our family of brands over any other builder in the country, we never forget the most important thing of all – the families that choose us for their place to call home.
So continue to live out those dreams, America, and know we’ll be here for you every step of the way.
Hipoteca estimada: $4,051/mes . Ir a la calculadora de hipotecas El pago mensual estimado no incluye los montos de impuestos, primas de seguro y mejoras en el hogar. $0 pago inicial para Veteranos
Casas Cercanas en Newnan, Georgia
Plan TISDALE por D.R. Horton
¡guardada en favoritos!
Para ver todas las casas que ha guardado, visite Mis Favoritos en su cuenta.
