- Casas Nuevas
- Indiana
- Área de Indianapolis
- McCordsville, IN
- Rockport
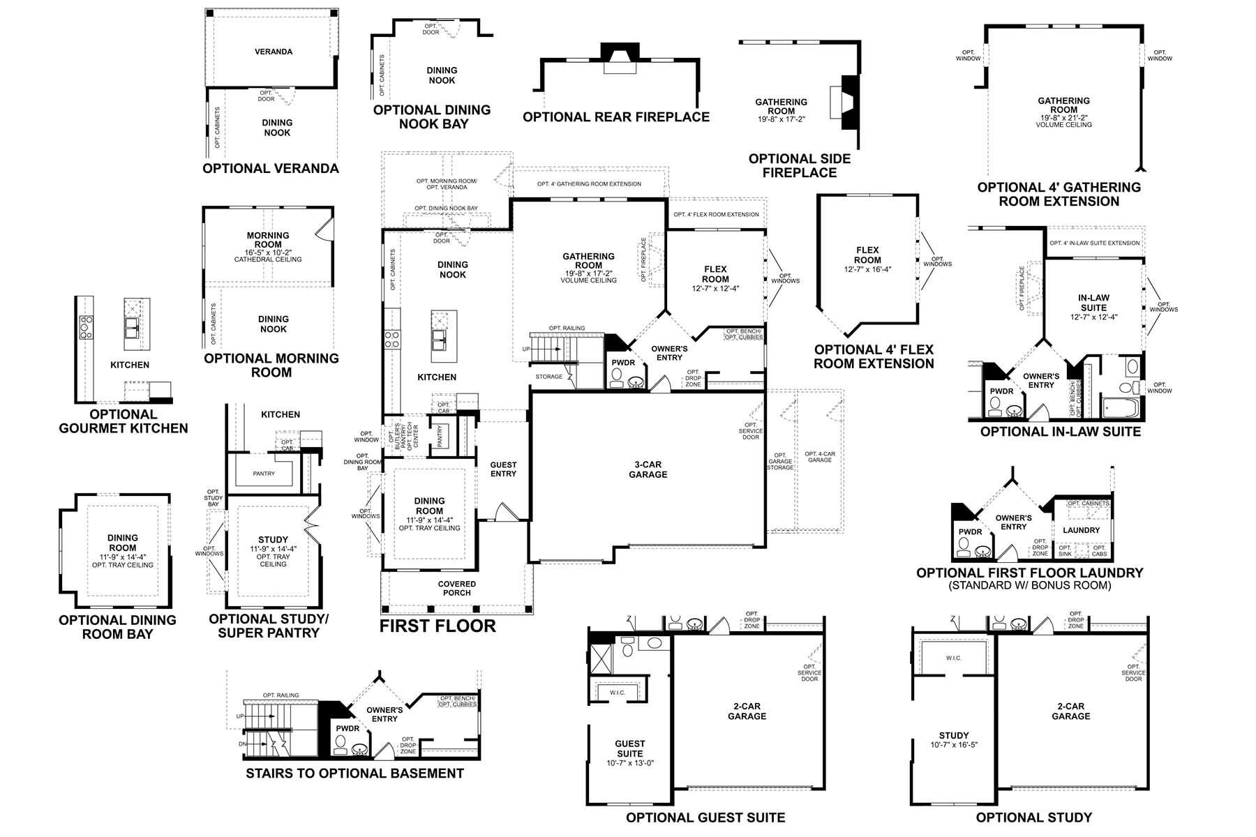
- 6379 Sailmaker Drive (Ainsley II Basement)
6379 Sailmaker Drive (Ainsley II Basement)
Construyendo Ahora
McCordsville, IN 46055
Casa por M/I Homes
en Rockport

Última actualización hace 15 horas
- desde $699,990 ¿Qué es lo que quiere decir este rango de precios?
El rango de precios mostrado refleja el precio base de las casas construidas en esta comunidad
Usted debe seleccionar entre las muchos tipos diferentes de casas construidas por este constructor y personalizar su casa nueva con opciones y personalizaciones. - 5 HAB
- 3.5 BÑ
- 3 GR
- 3,252 SQ FT
Solicite un Recorrido Hoy!
6379 Sailmaker Drive, McCordsville, IN 46055
6320 Sailmaker Drive, McCordsville, IN 46055
888-278-4791
Agente de Ventas Michelle Rinear
Recorrido en persona
Reúnase con un representante experto en el lugar para una visita guiada a su hogar.
Recorrido remoto
Realice una videollamada con un representante para realizar un recorrido virtual de esta casa.
Tenga en cuenta que las condiciones actuales pueden afectar las horas de operación.
Socios Valiosos

Ainsley II First Floor 1/2
Detalles de la Casa
Destacados
- Casas Unifamiliares
- 3,252 Sq Ft
- 3 Pisos
- 3 Baños
- 1 Medio Baño
- 5 Cuartos
- 3 Garajes
- Cuarto Principal Arriba
6379 Sailmaker Drive (Ainsley II Basement) Información de la casa
Personalización del Hogar
Centro de Planos
View floor plan details for this property.
- Planes de Distribución
- Imagenes de Exteriores
- Imagenes de Interiores
- Otros Medios
Área y Comunidad
Mapa y Direcciones
6320 Sailmaker Drive
McCordsville, IN 46055
Comunidad y vecindario
Información de la Comunidad
Located in the charming town of McCordsville, Indiana, Rockport is a stunning community offering new construction homes that combine modern design with scenic surroundings. With easy access to Pendleton Pike, I-465, and I-69, this community will provide seamless connectivity to the best of central Indiana, from top employers to shopping, dining, and entertainment. Experience a lifestyle where convenience meets tranquility at Rockport. About Our Homes for Sale in McCordsville, INRockport will feature an exquisite lineup of homes from our coveted Prestige Series, showcasing thoughtfully crafted home plans with high-end finishes and open-concept layouts. Whether you're searching for a spacious two-story home or a functional ranch-style plan, you'll find options that suit your needs and lifestyle. Each home is built to offer elegance and efficiency, delivering around 2,000–4,000 square feet of thoughtfully designed living space. Explore the Surrounding AreaLiving at Rockport means being close to some of the best attractions and conveniences in McCordsville, Fortville, and beyond. Local highlights include: , Recreational Spots: Fort Harrison State Park, Geist Reservoir, and Flat Fork Creek Park provide endless outdoor activities. , Dining and Entertainment: Fishers District, Nickel Plate District, and local favorites like Taxman Fortville and Moon Drops Distillery offer diverse options for dining and entertainment. , Cultural and Scenic Destinations: Enjoy the charm of nearby Daniel’s Vineyard or relax at Geist Waterfront Park for a picturesque escape.Additionally, the community is served by the highly rated Mt. Vernon Community School Corporation, making Rockport an excellent choice for families. Schools in this district include McCordsville Elementary School, Mt. Vernon Middle School, and Mt. Vernon High School. Don’t Miss Your Chance—Sign Up for the First Look!Be among the first to explore everything Rock... Mas información acerca de Rockport
Construyendo Ahora
Esta casa está actualmente en construcción en 6379 Sailmaker Drive y pronto estará disponible para la mudanza en Rockport. ¡Póngase en contacto con M/I Homes hoy para fijar sus opciones!
Comunidad y vecindario
Instituciones educativas cerca de Rockport
- Mt Vernon Community Community School Corporation
- Westfield-washington Schools
- Washington Woods Elementary School
Las escuelas podrían variar. Póngase en contacto con el constructor para obtener más información.
Puntos de Interés Locales
- Hancock Wellness Center
- Daniel's Vineyard
- Fort Harrison State Park
- Old Oakland Golf Club
- Scoops
- Geist Park
- Los Agaves Grill
- Indianapolis Yacht Club
- Wolfies Grill
- Sahm Golf Course
- Tuttle Orchards
Salud y Ejercicio
- Senderos
Servicios de la Comunidad y Beneficios
- Área de juegos
- Parque
- Centro Comunitario
Comodidades del vecindario
Tiendas de Comestibles
- Meijer
2.12 millas de distancia
6939 W Broadway
- Tasteful Times
3.02 millas de distancia
11677 Olio Rd
- Kroger
3.06 millas de distancia
11700 Olio Rd
- Fresh Thyme Market
3.38 millas de distancia
11481 E 116th St
- Kroger
3.79 millas de distancia
9835 Fall Creek Rd
- Meijer
Tiendas Especializadas
- Tim's Bakery
1.45 millas de distancia
6087 W Broadway
- Meijer Bakery
2.12 millas de distancia
6939 W Broadway
- Petals & Produce
2.55 millas de distancia
12345 Pendleton Pike
- Kroger Bakery
3.06 millas de distancia
11700 Olio Rd
- Tim's Bakery
Restaurantes
- Goodfella's Brick Oven Pizza & Pasta Restaurant-McCordsville
1.04 millas de distancia
9641 Olio Rd
- Happy Cuisine
1.04 millas de distancia
9657 Olio Rd
- Papa Johns
1.04 millas de distancia
9669 Olio Rd
- Subway
1.04 millas de distancia
9661 Olio Rd
- McDonald's
1.08 millas de distancia
9707 Olio Rd
- Goodfella's Brick Oven Pizza & Pasta Restaurant-McCordsville
Cafés
- Starbucks
2.12 millas de distancia
6939 W Broadway
- Hoi Tea Toi Tea
2.18 millas de distancia
11427 Leander Ln
- Starbucks
2.90 millas de distancia
13701 E 116th St
- Dunkin'
3.01 millas de distancia
12660 E 116th St
- Starbucks
3.06 millas de distancia
11700 Olio Rd
- Starbucks
Compras
- Francina's Fashion at Geist
1.27 millas de distancia
7952 Alamosa Ln
- Bee Boutique
2.84 millas de distancia
11386 Olio Rd
- Apricot Lane Boutique
3.02 millas de distancia
11691 Olio Rd
- Red Lotus Ventures
3.02 millas de distancia
11691 Olio Rd
- PJ's Pink Boutique, L.L.C.
4.27 millas de distancia
36 S Main St
- Francina's Fashion at Geist
Bares & Vida Nocturna
- Murphys Craft House
1.99 millas de distancia
11705 Fox Rd
- Buffalo Wild Wings
2.99 millas de distancia
13868 E 116th St
- Murphys PubHouse
3.02 millas de distancia
11650 Olio Rd
- Joe's Grille Fishers
3.07 millas de distancia
11640 Brooks School Rd
- Whiskey Business
3.35 millas de distancia
11915 Pendleton Pike
- Murphys Craft House
Tenga en cuenta que esta información puede variar. Si encuentra algo inexacto, por favor contáctenos
M/I Homes has been building new homes of outstanding quality and superior design for more than 40 years. Founded in 1976 by Irving and Melvin Schottenstein, and guided by Irving’s drive to always “treat the customer right,” we’ve fulfilled the dreams of more than 150,000 homeowners, and grown to become one of the nation’s leading homebuilders.
Da el siguiente paso hacia tu casa nueva
6379 Sailmaker Drive (Ainsley II Basement) por M/I Homes
¡guardada en favoritos!
Para ver todas las casas que ha guardado, visite Mis Favoritos en su cuenta.