- Casas Nuevas
- Indiana
- Área de Indianapolis
- McCordsville, IN
- Helm's Mill
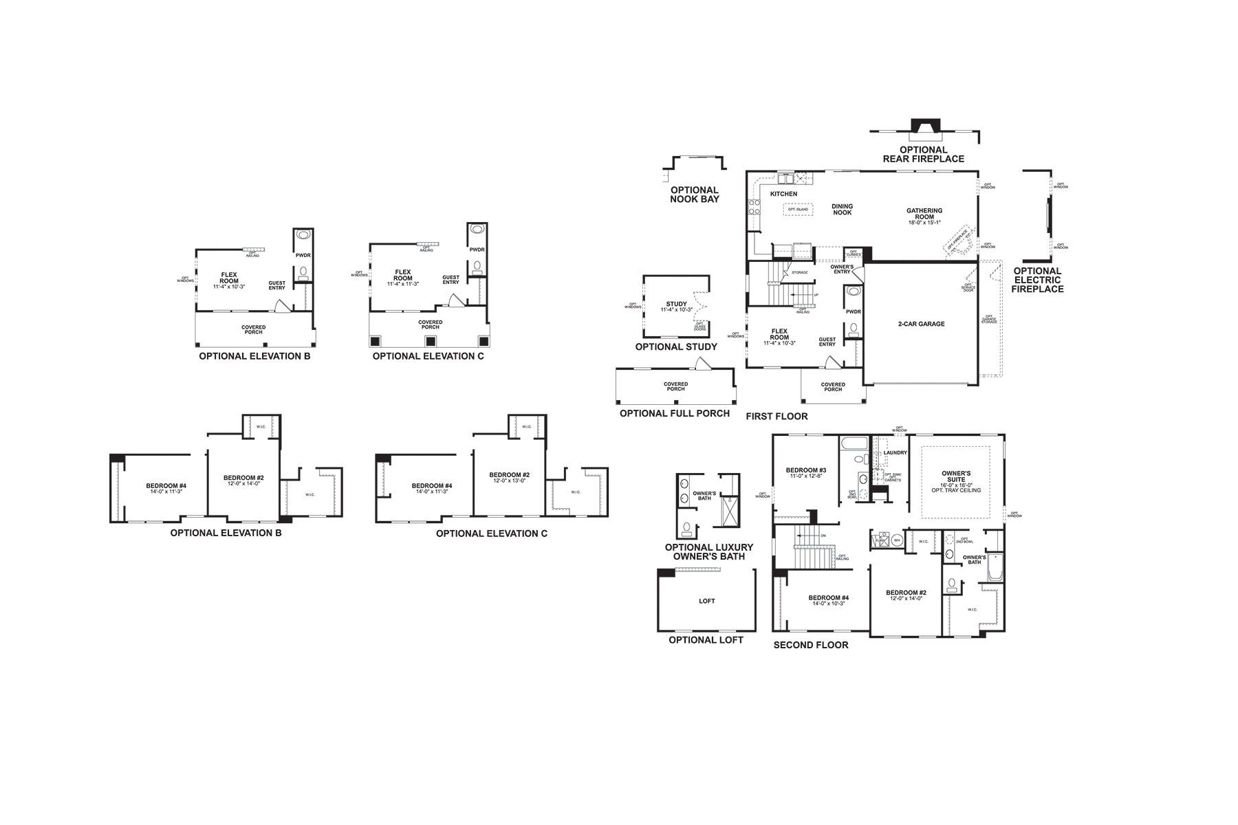
- Plan Findlay
Plan Findlay
Lista para Construir
9925 Hyde Drive, McCordsville IN 46055
Casa por M/I Homes
en Helm's Mill

Última actualización hace 22 horas
- desde $377,990 ¿Qué es lo que quiere decir este rango de precios?
El rango de precios mostrado refleja el precio base de las casas construidas en esta comunidad
Usted debe seleccionar entre las muchos tipos diferentes de casas construidas por este constructor y personalizar su casa nueva con opciones y personalizaciones. - 3 HAB
- 2.5 BÑ
- 2 GR
- 2,315 SQ FT
Solicite un Recorrido Hoy!
9925 Hyde Drive, McCordsville, IN 46055
888-301-0930
Agente de Ventas Michelle Rinear
Recorrido en persona
Reúnase con un representante experto en el lugar para una visita guiada a su hogar.
Recorrido remoto
Realice una videollamada con un representante para realizar un recorrido virtual de esta casa.
Tenga en cuenta que las condiciones actuales pueden afectar las horas de operación.
Socios Valiosos

Findlay 1/3
Detalles de la Casa
Destacados
- Casas Unifamiliares
- 2,315 Sq Ft
- 2 Pisos
- 2 Baños
- 1 Medio Baño
- 3 Cuartos
- 2 Garajes
- Cuarto Principal Arriba
Plan Findlay Información
Personalización del Hogar
Centro de Planos
View floor plan details for this property.
- Planes de Distribución
- Imagenes de Exteriores
- Imagenes de Interiores
- Otros Medios
Explore las opciones personalizadas para este plano.
- Elegir Opciones
- Incluir Características
Área y Comunidad
Mapa y Direcciones
9925 Hyde Drive
McCordsville, IN 46055
Comunidad y vecindario
Información de la Comunidad
Lista para Construir
Construye la casa de tus sueños con el plan Findlay seleccionando tus opciones favoritas. ¡Para la mejor selección, elija su lote en Helm's Mill hoy!
Comunidad y vecindario
Instituciones educativas cerca de Helm's Mill
- Mt Vernon Community Community School Corporation
Las escuelas podrían variar. Póngase en contacto con el constructor para obtener más información.
Puntos de Interés Locales
- Daniel's Vineyard
- Geist Park
- Los Agaves Grill
- Wolfies Grill
- Tuttle Orchards
- Scoops
- Geist Montessori Academy
- Memorial Park Dog Park
- McCordsville Sports Park
- Fort Harrison State Park
Salud y Ejercicio
- Senderos
- Baloncesto
Servicios de la Comunidad y Beneficios
- Área de juegos
M/I Homes has been building new homes of outstanding quality and superior design for more than 40 years. Founded in 1976 by Irving and Melvin Schottenstein, and guided by Irving’s drive to always “treat the customer right,” we’ve fulfilled the dreams of more than 150,000 homeowners, and grown to become one of the nation’s leading homebuilders.
Da el siguiente paso hacia tu casa nueva
Plan Findlay por M/I Homes
¡guardada en favoritos!
Para ver todas las casas que ha guardado, visite Mis Favoritos en su cuenta.