Esta comunidad ya no está disponible
Comunidades similares cercanas

por David Weekley Homes

por David Weekley Homes

por David Weekley Homes
Buscar más casas nuevas ahora
- Casas Nuevas
- Texas
- Área de Fort Worth
- Joshua, TX
- Silo Mills
Más Acerca de esta Constructor
Ver Más Comunidades en Fort Worth, TX
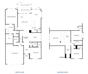
Información de la Comunidad
Silo Mills
Welcome to Silo Mills, the breathtaking 840-acre master-planned community nestled in Joshua, TX, conveniently off FM 917 with easy access to the Chisholm Trail Parkway. Here, luxury amenities abound, from our resort-style swimming complex to picturesque parks. Silo Mills places you within reach of Fort Worth and Cleburne, offering proximity to employment hubs, diverse shopping, dining and entertainment options. Explore Fort Worth’s treasures like the Botanic Gardens and Bass Performance Hall, just a short drive away. Prioritizing education, Silo Mills boasts top-rated schools in Godley ISD, making it the ultimate family community.